- Mặc định
- Lớn hơn
Xu hướng xây nhà 1 tầng 3 phòng ngủ ngày càng phổ biến trong những năm gần đây nhờ ưu điểm về công năng, chi phí và tính tiện nghi. Mẫu nhà này phù hợp với gia đình từ 3-6 thành viên, vừa đảm bảo sự gắn kết giữa các thành viên, vừa tạo ra không gian sinh hoạt rộng rãi, thoáng đãng. Dù thiết kế chỉ một tầng, nhưng nếu xử lý mặt bằng thông minh và tối ưu diện tích hợp lý, gia chủ vẫn có thể sở hữu công trình đẹp, sang và đầy đủ tiện nghi như mẫu nhà nhiều tầng.
Đặc điểm nhà 1 tầng 3 phòng ngủ
Các mẫu nhà 1 tầng 3 phòng ngủ thường được thiết kế trên quỹ đất từ 80-120m2, phù hợp với những gia đình đông thành viên từ 3-6 người. Với việc chỉ có một tầng duy nhất, mọi sinh hoạt đều diễn ra trên cùng mặt bằng. Nhờ đó vừa tạo sự gắn kết, vừa thuận tiện trong sinh hoạt hằng ngày và đặc biệt an toàn cho gia đình có người lớn tuổi hoặc trẻ nhỏ do hạn chế di chuyển lên xuống cầu thang.

Thông thường, bố cục tổng thể của nhà 1 tầng 3 phòng ngủ sẽ dành khoảng 1/3 đến 1/2 diện tích cho các không gian sinh hoạt chung như: phòng khách, phòng bếp, phòng ăn, nhà vệ sinh và tùy nhu cầu có thể bổ sung phòng thờ, phòng giải trí hoặc giếng trời. Phần diện tích còn lại được phân chia thành 3 phòng ngủ với kích thước hợp lý, đảm bảo sự riêng tư và thoải mái cho từng thành viên trong gia đình.
Nhờ sự gọn gàng trong bố trí và sự linh hoạt trong phong cách thiết kế, nhà 1 tầng 3 phòng ngủ không chỉ đáp ứng đầy đủ công năng mà còn mang lại vẻ đẹp hài hòa, ấm cúng cho không gian sống.
Bản vẽ mặt bằng nhà 1 tầng 3 phòng ngủ
Bản vẽ mặt bằng là bản mô tả tổng quan cách bố trí công năng trong một ngôi nhà, thể hiện rõ vị trí từng khu vực, kích thước, lối di chuyển và mối liên kết giữa các phòng. Khi thiết kế nhà 1 tầng 3 phòng ngủ, kiến trúc sư sẽ dựa vào diện tích đất, hình dáng khu đất và nhu cầu sử dụng thực tế để đưa ra bản vẽ phù hợp nhất. Vì vậy, bản vẽ dưới đây chỉ mang tính chất tham khảo cho bạn hình dung cách bố trí không gian tối ưu trong một căn nhà 1 tầng.

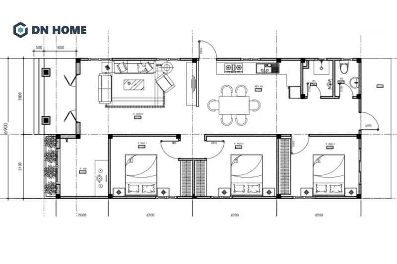
Dựa trên bản vẽ mặt bằng trên có thể thấy khu vực trung tâm là phòng khách rộng rãi, nằm tại vị trí cửa chính bước vào, liên kết toàn bộ công năng trong nhà. Từ phòng khách có thể di chuyển dễ dàng đến các khu vực chức năng khác.
Bên trái là phòng ngủ 01 có cửa sổ lớn thoáng sáng, liền kề là phòng bếp – ăn được bố trí gọn gàng, thông thoáng. Bên phải bố trí hai phòng ngủ còn lại, đảm bảo sự riêng tư nhưng vẫn kết nối với không gian sinh hoạt chung.
Phòng thờ được đặt ở vị trí trang trọng phía trên phòng khách, đảm bảo yếu tố phong thủy và sự tôn nghiêm. Bao quanh nhà là hệ thống hiên và sân vườn, tạo khoảng xanh thoáng đãng, tăng tính đối lưu gió và ánh sáng tự nhiên.
>>> Bài viết liên quan: Mẫu bản vẽ nhà cấp 4 3 phòng ngủ 100m2 đẹp, công năng tối ưu, phù hợp cho gia đình hiện đại
Dự trù chi phí xây nhà 1 tầng 3 phòng ngủ
Để dự toán chi phí xây dựng nhà 1 tầng 3 phòng ngủ, trước hết cần xác định tổng diện tích xây dựng, bao gồm: móng nhà, diện tích sàn và diện tích mái. Ví dụ với căn nhà có diện tích 100m², ta có:
- Phần móng nhà: 100m2 × 50% = 50m2
- Diện tích tầng 1: 100m2
- Phần mái: 100m2 × 70% = 70m2
=> Tổng diện tích xây dựng = 50m2 + 100m2 + 70m2 = 220m2
Với đơn giá thi công nhà ở trọn gói hiện nay dao động 4.500.000 – 5.500.000 VNĐ/m2, tổng chi phí xây nhà 1 tầng 3 phòng ngủ sẽ rơi vào khoảng: 990.000.000 – 1.210.000.000 VNĐ

Tuy nhiên, đây chỉ là mức dự toán tham khảo. Chi phí thực tế có thể thay đổi dựa trên nhiều yếu tố như: loại móng phù hợp với nền đất, kiểu mái (mái bằng/mái Thái/mái nhật), phong cách kiến trúc, vật liệu hoàn thiện, thời điểm xây dựng, mức độ phức tạp của bản vẽ và yêu cầu riêng của gia chủ. Để có báo giá chính xác nhất, bạn nên làm việc trực tiếp với đơn vị thiết kế – thi công uy tín để được tư vấn cụ thể.
55+ mẫu nhà 1 tầng 3 phòng ngủ đẹp sang trọng nhất
Thiết kế nhà 1 tầng 3 phòng ngủ hiện nay đều chú trọng vào sự tiện nghi, công năng khoa học và vẻ đẹp thẩm mỹ trường tồn theo thời gian. Dưới đây là những mẫu nhà nhà 1 tầng với 3 phòng ngủ được thiết kế đa dạng phong cách, kiểu mái, thế đất và nhu cầu sử dụng riêng mà gia chủ có thể tham khảo:
Mẫu nhà mái thái 1 tầng 3 phòng ngủ
Mẫu nhà 1 tầng 3 phòng ngủ mái Thái luôn tạo được thiện cảm nhờ vẻ đẹp bề thế và sang trọng. Phần mái cao vút với độ dốc lớn giúp ngôi nhà trông thanh thoát hơn, đồng thời mang lại khả năng chống nóng – thoát nước tối ưu. Điểm nhấn ngoại thất còn nằm ở hệ trụ cột chắc chắn kết hợp khung cửa sổ vòm cung mềm mại, mang đến vẻ đẹp vừa đẳng cấp vừa hài hòa. Đây là lựa chọn lý tưởng cho gia chủ yêu thích phong cách sang trọng, tinh tế nhưng vẫn giữ được nét kiến trúc truyền thống Á Đông.

Không gian của mẫu nhà 1 tầng 3 phòng ngủ này được bố trí vô cùng hợp lý. Từ sảnh chính bước vào là phòng khách rộng rãi, liên thông khu vực bếp – bàn ăn giúp tối ưu giao thông nội bộ và tạo cảm giác thoáng đãng. Ba phòng ngủ được sắp xếp tách biệt: một phòng master có WC riêng đảm bảo sự riêng tư cho vợ chồng, trong khi hai phòng ngủ còn lại dành cho con cái hoặc khách. WC chung bố trí ở vị trí dễ tiếp cận, không ảnh hưởng đến sinh hoạt hằng ngày.

Mẫu nhà mái bằng 1 tầng 3 phòng ngủ
Khác với sự bề thế của mái Thái, mẫu nhà 1 tầng 3 phòng ngủ mái bằng theo phong cách hiện đại lại đem đến cảm giác tối giản – tinh tế – phóng khoáng. Ngoại thất thường sử dụng đường nét vuông vức, mạch lạc, kết hợp gam màu trung tính như trắng, xám, ghi để tạo vẻ trang nhã. Chất liệu kính được dùng nhiều ở cửa và mặt tiền nhằm đón sáng tự nhiên, giúp ngôi nhà trở nên thoáng rộng hơn. Phía trước có thể kết hợp thêm tiểu cảnh hoặc vài mảng xanh để tăng sức sống và tạo điểm nhấn nhẹ nhàng cho tổng thể.

Phòng khách đặt ngay gần cửa ra vào, giúp đón gió và ánh sáng tốt. Tiếp đến là khu vực bếp – ăn rộng thoáng nằm ở trung tâm, tạo kết nối giữa các không gian. Ba phòng ngủ được bố trí liên tiếp dọc theo hành lang, trong đó có một phòng lớn hơn dành cho bố mẹ và hai phòng nhỏ phù hợp cho trẻ em. Khu vệ sinh đặt cuối nhà, đảm bảo sự riêng tư và hạn chế ảnh hưởng đến khu sinh hoạt chung.

Mẫu nhà mái lệch 1 tầng đẹp 3 phòng ngủ
Thiết kế mái lệch luôn mang lại cảm giác mới mẻ và trẻ trung cho ngôi nhà. Điểm nhấn lớn nhất nằm ở phần mái được giật cấp tinh tế, tạo hiệu ứng thị giác mạnh mẽ và phù hợp với xu hướng hiện đại, tối giản. Những đường nét thẳng gọn gàng kết hợp cùng hệ đèn ngoại thất được bố trí khoa học giúp tổng thể ngôi nhà thêm thu hút khi về đêm. Đây là kiểu nhà lý tưởng dành cho gia đình trẻ yêu thích sự năng động, phóng khoáng nhưng vẫn muốn giữ lại vẻ hài hòa trong thiết kế tổng thể.

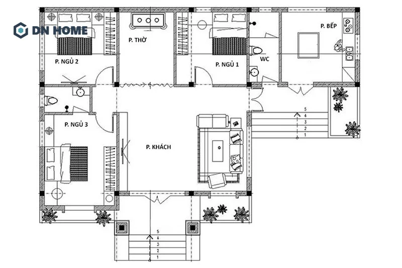
Toàn bộ không gian ngôi nhà được phân chia thành 2 khu bên trái và phải. Khu vực công năng bên phải ngay sau cửa chính sẽ là không gian sinh hoạt chung, lần lượt là phòng khách, đến bếp – ăn và nhà vệ sinh đặt cuối nhà để đảm bảo tính thẩm mỹ. Khu vực bên trái sẽ bố trí gian phòng thờ thể hiện sự tôn nghiêm và hợp phong thủy với hướng nắng chiếu vào. Tiếp đến là bố trí 3 phòng ngủ còn lại, đảm bảo sự riêng tư.

Mẫu nhà ống 3 phòng ngủ 1 tầng mái Nhật
Đối với những gia đình tìm kiếm sự cân bằng giữa truyền thống và hiện đại, mẫu nhà 1 tầng với 3 phòng ngủ phong cách mái Nhật luôn là lựa chọn lý tưởng. Mái Nhật có độ dốc nhẹ, thanh thoát nên vẫn giữ được sự tinh tế vốn có. Kiến trúc ngoại thất thường ưu tiên các gam màu trung tính chuyển tiếp từ sáng đến tối nhằm tạo chiều sâu và điểm nhấn. Hệ cột trụ vuông vức thể hiện sự mạnh mẽ, kiên cố của công trình, kết hợp phào chỉ tối giản giúp tổng thể vừa sang trọng vừa không quá cầu kỳ.

Sau cửa chính là khu vực phòng khách được bố trí thoáng đãng là liên thông với phòng thờ, tạo cảm giác sang trọng và thể hiện sự tôn nghiêm. Bên trái bố trí 2 phòng ngủ tách biệt, đảm bảo sự riêng tư cho thành viên trong gia đình, Phía bên phải bố trí 1 phòng ngủ còn lại và khu bếp ăn, nhà vệ sinh và khu giặt sấy.

>>> Tìm hiểu thêm: Mẫu nhà chữ I 1 tầng mái bằng đẹp, tiết kiệm chi phí và phù hợp với nhiều diện tích đất.
Mẫu nhà ống 1 tầng đẹp 3 phòng ngủ
Nhà ống 1 tầng 3 phòng ngủ là thiết kế phổ biến tại các khu đô thị với quỹ đất hạn hẹp và đặc trưng hình chữ nhật. Ngoại thất thường tập trung vào việc tạo hình khối mạnh mẽ, sử dụng các mảng kiến trúc chữ nhật – tam giác để tạo điểm nhấn độc đáo nhưng vẫn mang đến vẻ kiên cố và chắc chắn cho ngôi nhà. Chất liệu gỗ trang trí mặt tiền kết hợp cùng hệ cửa kính lớn giúp không gian đón sáng tốt hơn và mở rộng tầm nhìn. Sân vườn phía trước dù nhỏ nhưng được bố trí xanh mát góp phần làm tổng thể ngôi nhà hài hòa và sinh động hơn, đúng tinh thần của một không gian sống hiện đại.

Với thế đất hình chữ nhật, để giúp không gian trông rộng rãi hơn, phần sân vườn được thiết kế ở phía trước để tạo cảm giác thoáng đãng. Phòng khách được thiết kế ngay sau cửa chính, liên thông với không gian bếp ăn để tối ưu diện tích, Phòng thờ được đặt ngay bên phải phòng khách với hệ cửa số lớn nhằm đảm bảo phong thủy, sự sáng của cho không gian trang nghiêm. Khoảng giữa ngôi nhà bố trí 2 phòng ngủ nhỏ cùng 1 nhà vệ sinh, khu vực cuối nhà bố trí phòng ngủ master để đảm bảo sự yên tĩnh và riêng tư.

Mẫu nhà vuông 1 tầng 3 phòng ngủ
Thiết kế nhà vuông là một trong những bố cục tối ưu nhất cho các mẫu nhà 1 tầng 3 phòng ngủ, bởi phong thủy tốt và dễ dàng bố trí công năng cân đối. Phong cách Á Đông cổ điển được thể hiện rõ qua hệ mái Thái xanh nổi bật, tạo cảm giác bề thế và sang trọng. Ngoại thất sử dụng gam trắng chủ đạo giúp nhấn mạnh sự tinh tế và làm nổi bật cửa chính bằng gỗ màu trầm – điểm nhấn thể hiện sự ấm áp và đẳng cấp. Xung quanh nhà thường trồng thêm tiểu cảnh và cây xanh, góp phần tăng tính thẩm mỹ và tạo nên không gian sống trong lành.

Phòng khách được thiết kế liên thông với gian thờ và được đặt ở vị trí trung tâm của ngôi nhà. Phía bên trái bố trí 2 phòng ngủ với nhà vệ sinh được thiết kế khép kín, thuận tiện cho người lớn sử dụng. Phần diện tích còn lại bố trí khu vực bếp ăn và phòng ngủ nhỏ cùng nhà vệ sinh tách biệt để khách có thể sử dụng.

Mẫu nhà vườn 1 tầng 3 phòng ngủ
Nếu bạn yêu thích sự tự do và hòa mình vào thiên nhiên, mẫu nhà 1 tầng 3 phòng ngủ kiểu nhà vườn chắc chắn là lựa chọn đáng cân nhắc. Điều làm nên sức hút của kiểu nhà này là sự kết hợp giữa không gian mở và mảng xanh bao quanh, tạo nên môi trường sống thoáng mát và gần gũi. Màu sắc ngoại thất thường ưu tiên tông nâu, trắng, vàng đất để hài hòa với cảnh quan sân vườn. Mái ngói Nhật được lựa chọn nhiều bởi tính thẩm mỹ cao, bền vững và phù hợp với nét đẹp truyền thống. Hệ trụ và mái hiên rộng trước cửa chính không chỉ là điểm nhấn kiến trúc mà còn giúp che nắng mưa hiệu quả.

Phòng khách và phòng bếp được thiết kế liên thông, tạo nên không gian mở thoáng đãng và gắn kết các thành viên trong gia đình. Phía bên trái là khu vực ăn và nhà vệ sinh, cách bố trí này thuận tiện cho sinh hoạt chung và cũng thuận tiện khi có khách đến thăm. Toàn bộ diện tích còn lại bên phía tay phải bố trí 3 phòng ngủ, trong đó gồm 1 phòng ngủ master có nhà vệ sinh khép kín và 2 phòng ngủ phụ.

>>> Có thể bạn quan tâm: mẫu nhà 2 tầng đẹp giá 700 triệu là lựa chọn lý tưởng cho gia đình trẻ mong muốn không gian sống đầy đủ và thoải mái.
Mẫu nhà chữ L 1 tầng 3 phòng ngủ
Nhà chữ L 1 tầng 3 phòng ngủ được ưa chuộng nhờ khả năng tối ưu không gian và tạo điểm nhấn kiến trúc độc đáo. Khoảng khuyết chữ L được tận dụng để làm sân trước, vừa tạo lối đi thông thoáng, vừa giúp mặt tiền thêm rộng rãi. Mái Thái A màu xám giật cấp đa chiều giúp công trình trông sang trọng hơn, kết hợp cùng những đường gờ chạy ngang mặt tường cùng dàn hoa làm từ lam bê tông trắng tạo nên sự mềm mại, thanh thoát. Đây là lựa chọn phù hợp cho gia chủ yêu thích nét đẹp sang trọng nhưng vẫn gần gũi, tinh tế.

Từ sảnh chính bước vào, bạn sẽ thấy không gian phòng khách thiết kế rộng thoáng. Phía trên là khu vực phòng thờ, được đặt đối diện với cửa chính để đón nhận được nhiều ánh sáng tự nhiên. Hai phòng ngủ phụ được đặt hai bên phòng thờ, trong khi đó phòng ngủ chính được đặt cạnh phòng khách. Từ cửa phụ đi vào là khu vực bếp và nhà vệ sinh được đặt tách biệt để tránh ám mùi thức ăn.

Bản vẽ nhà 1 tầng 3 phòng ngủ 1 phòng thờ
Mặt tiền nhà 1 tầng 1 phòng thờ và 3 phòng ngủ sử dụng hệ cửa kính lớn giúp ánh sáng tự nhiên tràn vào, tạo cảm giác mở và mang đến sự thông thoáng giữa nội thất và sân vườn bên ngoài. Tông màu trắng chủ đạo trong nội thất và ngoại thất giúp tổng thể căn nhà trở nên rộng rãi, tinh tế và hiện đại hơn. Kiểu mái Thái xanh ghi đậm được sử dụng, kết hợp với gam màu trắng chủ đạo tường nhà mang lại vẻ đẹp sang trọng và trang nhã cho ngôi nhà.

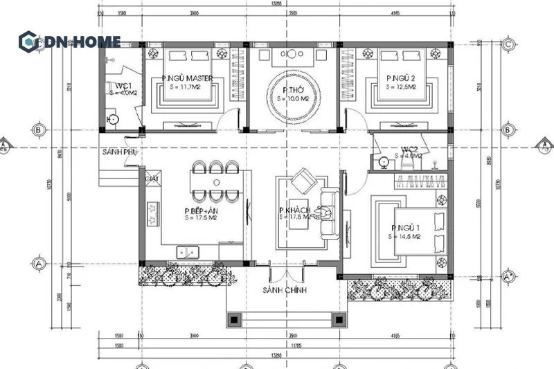
Khu vực phòng khách được đặt ngay trung tâm, ngay phía sau sảnh chính, thuận tiện cho việc di chuyển đến các khu vực khác. Phòng bếp – ăn được bố trí bên trái phòng khách và tách biệt với vách ngăn, cửa sau cũng được bố trí gần đó để giúp thoát mùi hiệu quả. Phía trên bếp – ăn là phòng ngủ master, tiếp đến là phòng thờ và diện tích còn lại bố trí 2 phòng ngủ phụ cùng nhà vệ sinh.

Mẫu nhà 1 tầng 3 phòng ngủ 80m2
Với diện tích nhỏ gọn, mẫu nhà 1 tầng 3 phòng ngủ 80m2 được thiết kế tinh giản nhưng vẫn đảm bảo tính thẩm mỹ và công năng đầy đủ. Gam màu vàng chủ đạo kết hợp mái đỏ giúp ngoại thất trở nên nổi bật và mang sắc thái ấm áp, sang trọng. Chân tường sử dụng vật liệu gạch hoặc đá rối bền chắc, vừa giúp tăng tuổi thọ công trình vừa tạo điểm nhấn cho mặt tiền. Với không gian sân vườn xung quanh, hệ cửa kính được ưu tiên để đón gió, lấy sáng và tạo tầm nhìn thoáng đãng ra bên ngoài.

Với diện tích khiêm tốn, toàn bộ khu vực sinh hoạt chung phòng khách – phòng ăn – phòng bếp được thiết kế liên thông thẳng hàng từ cửa chính bước vào để tối ưu diện tích. Khu vực bếp còn được thiết kế cửa phụ để thoáng khí, tránh ám mùi do không gian mở. Phần không gian còn lại bố trí 3 phòng ngủ, với phòng ngủ chính có nhà vệ sinh khép kín đặt kê phòng khách, liền kề phía sau là nhà vệ sinh chung và 2 phòng ngủ phụ.

Mẫu nhà 1 tầng 3 phòng ngủ 100m2
Mẫu nhà 1 tầng với 3 phòng ngủ được thiết kế phong cách Á Đông nhẹ nhàng nhưng vẫn thanh lịch. Mái ngói đỏ truyền thống có độ dốc vừa phải giúp ngôi nhà trở nên nổi bật hơn khi nhìn từ xa. Đồng thời khi kết hợp cùng khối nhà thiết kế hiện đại, tinh tế tạo nên tổng thể hài hòa giữa xưa và nay. Ánh sáng tự nhiên cũng được tận dụng tối đa với nhiều ô cửa lớn, nhằm tránh cảm giác chật chội thường thấy ở kiểu nhà ống. Ngoài ra, hệ cột trụ vuông vức còn giúp tạo nên cảm giác vững chắc và là điểm nhấn cho phần hiên trước nhà.

Ngay sau sảnh chính là khu vực phòng khách được thiết kế sang trọng, đối diện là phòng thờ được bố trí gần khu vực sân vườn vừa đảm bảo phong thủy, yên tĩnh vừa thể hiện sự tôn nghiêm. Phần giữa ngôi nhà bố trí bếp ăn với cửa sổ lớn để thoáng khí, giảm mùi thức ăn. Không gian còn lại bố trí 3 phòng ngủ, 2 phòng ngủ nhỏ và 1 phòng ngủ master được đặt cuối nhà để đảm bảo riêng tư.

Mẫu nhà 1 tầng 3 phòng ngủ 120m2
Thiết kế nhà 1 tầng 120m2 mái bằng có 3 phòng ngủ mang hơi thở hiện đại, mạnh mẽ và vô cùng năng động. Gam màu trung tính trắng và ghi được sử dụng chủ đạo mang đến vẻ đẹp tinh tế, và cảm giác sang trọng cho ngôi nhà. Đồng thời cũng làm nổi bật lên điểm nhấn là gam màu nâu trầm, cân bằng sắc lạnh và thêm cảm giác ấm áp. Hệ cửa chính được làm từ kính lớn giúp không gian bên trong luôn tràn ngập ánh sáng. Tiểu cảnh xanh nhỏ bố trí trước nhà đóng vai trò làm mềm không gian, tăng thêm giá trị thư giãn và tính thẩm mỹ.

Phòng thờ được đặt bên phải góc nhà, hướng thẳng ra mặt tiền sân vườn ngôi nhà thể hiện sự tôn nghiêm và an tĩnh. Phòng khách và bếp – ăn được thiết kế liên thông ngay sau sảnh chính. Phòng ngủ master với nhà vệ sinh khép kín được bố trí đối diện phòng khách. Diện tích còn lại cuối nhà bố trí 2 phòng ngủ nhỏ và nhà vệ sinh chung ở giữa để thuận tiện khi sử dụng.

>>> Đọc thêm: Xây nhà cấp 4 trọn gói 200 triệu đang được nhiều gia đình lựa chọn nhờ chi phí hợp lý, thời gian thi công nhanh và dễ kiểm soát ngân sách.
Mẫu nhà đẹp 1 tầng 3 phòng ngủ có gara để xe
Mẫu nhà 1 tầng 3 phòng ngủ có gara có hình khối kiến trúc đơn giản, hiện đại nhưng vẫn tạo cảm giác vững chắc và kiên cố. Công trình sử dụng mái Nhật ghi xanh trang nhã, kết hợp tường ngoại thất mang hai gam màu trung tính – trắng và nóng – cam giúp tổng thể hài hòa mà vẫn có điểm nhấn. Không gian hiên nhà được thiết kế lan can tinh tế dẫn lên cửa chính, tạo cảm giác chào đón và tăng tính thẩm mỹ. Bên cạnh đó, khu vực mái hiên gara vừa bảo vệ xe, vừa giúp phần mặt tiền trở nên cân đối và có chiều sâu hơn.

Bản vẽ công năng bố trí sân trước và sân sau ngôi nhà tạo nên không gian gần gũi với thiên nhiên và dễ dàng đón ánh nắng tự nhiên từ mọi hướng. Khu vực gara được đặt bên trái ngôi nhà, thuận tiện di chuyển và sử dụng. Khu vực phòng khách được đặt ngay sau cửa chính, trung tâm công năng là 2 phòng ngủ và nhà vệ sinh chung, trong khi phòng ngủ master được đặt ở góc phải phía trước của ngôi nhà. Phía cuối bản vẽ là phòng bếp ăn và kho cùng hệ cửa sổ lớn để đảm bảo thoát mùi tốt hơn.

Bản thiết kế nhà 1 tầng 3 phòng ngủ phong cách châu Âu
Nếu yêu thích vẻ đẹp sang trọng và tráng lệ, bạn không thể bỏ qua mẫu nhà 1 tầng 3 phòng ngủ phong cách châu Âu. Công trình gây ấn tượng mạnh mẽ nhờ hệ mái ngói bề thế kết hợp cùng hình khối vuông vức, mang lại cảm giác kiên cố và đẳng cấp. Hệ cửa kính mái vòm đặc trưng, những cột trụ tròn lớn và đường gờ chạy ngang mặt tường tạo nên vẻ đẹp cách tân tinh tế mà không quá cầu kỳ. Phần chân cột và đế tường lát đá đen vân trắng càng tôn lên sự sang trọng đặc trưng của phong cách này.

Tiểu cảnh được bố trí trước sân nhà, ngay sau sảnh chính là khu vực phòng khách thiết kế liên thông với phòng bếp – ăn. Phòng thờ được đặt ở phía trước của ngôi nhà, hướng thẳng ra mặt tiền để đảm bảo sự thoáng đãng và sáng sủa cho khu vực thờ phụng. Phòng ngủ master với nhà vệ sinh khép kín được bố trí ngay sau phòng thờ. Hai phòng ngủ nhỏ và nhà vệ sinh chung được đặt ở cuối nhà để đảm bảo sự riêng tư và tính thẩm mỹ. Ngoài ra, còn có hai sảnh phụ bên hông và sau nhà để giúp luồng khí thông thoáng và tăng tính tiện nghi.

Mẫu nhà ống 1 tầng 3 phòng ngủ có sân vườn
Đối với những gia đình mong muốn cân bằng giữa tiện nghi và thiên nhiên, mẫu nhà 1 tầng 3 phòng ngủ có sân vườn chính là lựa chọn lý tưởng. Trong bối cảnh đô thị ngày càng chật chội, việc sở hữu khoảng sân thoáng mát trước và sau nhà giúp tạo không gian thư giãn thoải mái, đồng thời nâng cao tính thẩm mỹ cũng như phong thủy cho ngôi nhà. Thiết kế mang phong cách hiện đại với các hình khối phá cách, tối giản nhưng tinh tế. Việc sử dụng vật liệu kính và gỗ làm chủ đạo giúp công trình thêm nhẹ nhàng, gần gũi và giàu tính tự nhiên.

Bản vẽ nhà ống với diện tích trước và sau được tận dụng để bố trí sân vườn, tạo cảm giác gần gũi với thiên nhiên và dễ dàng tận dụng ánh sáng tự nhiên để tránh cảm giác bí bách – yếu tố thường bị hạn chế khi ở nhà ống. Sau khi bước vào sảnh chính là khu vực phòng khách – bếp ăn được thiết kế mở. Dọc theo hành lang đến phía cuối nhà là 3 phòng ngủ cùng nhà vệ sinh, đảm bảo sự riêng tư và yên tĩnh. Cuối hàng lang là cửa phụ dẫn lối đến sân vườn sau ngôi nhà.

Nhà 1 tầng 3 phòng ngủ kiểu Biệt thự
Biệt thự 1 tầng 3 phòng ngủ nổi bật với phần mái ngói cam rực rỡ, tương phản trên nền tường trắng tinh tế, tạo hiệu ứng thị giác mạnh kể cả khi nhìn từ xa. Hệ cửa sổ và cửa chính đồng bộ chất liệu gỗ sẫm màu mang đến cảm giác ấm cúng, sang trọng mà vẫn giữ được nét gần gũi. Xung quanh ngôi nhà, mảng xanh được bố trí khéo léo không chỉ giúp không gian thêm sinh động mà còn cải thiện thông gió, ánh sáng và tổng thể phong thủy của công trình.

Xung quanh biệt thự được bao bọc bởi hệ thống sân vườn, tạo nên cảm giác thoáng đãng và bề thế hơn. Khu vực gara xe được bố trí sân sâu với cổng vào riêng, đảm bảo sự tiện nghi khi sử dụng. Phòng khách được bố trí ngay sau khu vực sảnh chính và đặt giữa 2 phòng ngủ master có nhà vệ sinh khép kín. phía sau là phòng sinh hoạt chung, phòng thờ và phòng ngủ nhỏ được bố trí.

Nhà 1 tầng có gác lửng 3 phòng ngủ
Đối với những gia đình cần thêm diện tích sử dụng nhưng vẫn yêu thích sự gọn gàng, mẫu nhà 1 tầng 3 phòng ngủ có gác lửng là lựa chọn tối ưu. Kiến trúc bên ngoài được thiết kế hiện đại với hệ mái lệch độc đáo, mang lại vẻ ngoài trẻ trung và ấn tượng. Tông màu trắng chủ đạo giúp ngôi nhà trở nên rộng rãi hơn về thị giác, đồng thời tạo nền hoàn hảo để tôn lên các chi tiết kiến trúc. Gác lửng không chỉ tăng diện tích sinh hoạt mà còn làm ngôi nhà thêm bề thế. Bên cạnh đó, hệ thống đèn hiên trước nhà được bố trí tinh tế giúp nâng cao tính thẩm mỹ.

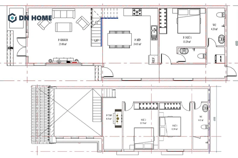
Tầng trệt bố trí khu vực sinh hoạt chung, phòng khách được bố trí ngay sau sảnh chính để thuận tiện tiếp đón khách. Tiếp đến là phòng bếp, được ngăn cách với phòng khách bằng cầu thang lên tầng lửng. Khu vực cuối hàng lang và phòng ngủ lớn với nhà vệ sinh khép kín và mộ nhà vệ sinh chung bên ngoài. Ngay khi bước lên tầng lửng là khu vực phòng thờ nghiêm trang hướng thẳng ra mặt tiền, phần diện tích còn lại bố trí 2 phòng nhỏ và 1 nhà vệ sinh chung.

Có thể thấy rằng các mẫu nhà 1 tầng 3 phòng ngủ ngày nay vô cùng đa dạng về phong cách thiết kế, diện tích và bố trí nhằm đáp ứng nhiều nhu cầu khác nhau của gia đình Việt. Tùy vào sở thích và ngân sách, mỗi gia chủ đều có thể tìm được thiết kế phù hợp, từ phong cách hiện đại tối giản, sân vườn xanh mát cho đến biệt thự tân cổ điển sang trọng hay mẫu nhà có gác lửng tiện nghi. Nếu bạn đang tìm kiếm một phương án lý tưởng, hãy cân nhắc những mẫu trên như gợi ý tham khảo đáng tin cậy cho tổ ấm của mình.
Liên hệ ngay đến hotline 1800 9398 để được Nội Thất Điểm Nhấn tư vấn chi tiết, báo giá chính xác nếu bạn đang có nhu cầu thiết kế – thi công nhà 1 tầng 3 phòng ngủ. Với hơn 10 năm hoạt động trong lĩnh vực cùng đội ngũ nhân sự chuyên môn cao, Nội Thất Điểm Nhấn tự hào luôn mang đến giải pháp tối ưu chi phí – thời gian – nhân lực và mang đến không gian sống lý tưởng, cá nhân hóa theo nhu cầu của chủ đầu tư.





