- Mặc định
- Lớn hơn
Những mẫu nhà cấp 4 đẹp 5×20 có gác lửng đang trở thành lựa chọn phổ biến nhờ khả năng mở rộng không gian sống mà không làm tăng quá nhiều chi phí xây dựng. Đây là kiểu nhà ở phù hợp với gia đình từ 3-5 người, đáp ứng tốt công năng nhưng vẫn đảm bảo được tính thẩm mỹ và trải nghiệm sống thoải mái. Trong bài viết dưới đây, hãy cùng DN HOME khám phá những mẫu nhà cấp 4 5x20m có gác lửng đẹp, hiện đại và ấn tượng.
Đặc điểm của nhà cấp 4 đẹp 5×20 có gác lửng
Nhà cấp 4 có gác lửng 5x20m nổi bật với khả năng tối ưu diện tích sử dụng, tạo nên không gian sinh hoạt thoải mái. Hãy cùng điểm qua một vài đặc điểm nổi bật của kiểu nhà ở này:

- Tối ưu diện tích sử dụng: Gác lửng giúp tăng thêm diện tích sàn sử dụng mà không cần xây thêm tầng lầu. Nhờ vậy, so với nhà cấp 4 thông thường, mẫu nhà này đáp ứng được nhu cầu sử dụng nhiều thành viên hơn nhưng vẫn đảm bảo thoáng đãng và thoải mái.
- Thiết kế hiện đại, tinh tế: Kiến trúc mẫu nhà cấp 4 đẹp 5×20 có gác lửng thường theo phong cách hiện đại với đường nét tối giản. Các chi tiết trang trí đơn giản như: lam gỗ, cửa kính lớn, lan can mảnh,… những vẫn đạt hiệu quả tốt trong việc tạo điểm nhấn cho công trình.
- Đa dạng phong cách: Tửng lửng giúp nhà cấp 4 trông cao ráo nên tỷ lệ 5×20 cũng trông hài hòa, cân đối hơn. Nhờ vậy, gia chủ có thể linh hoạt lựa chọn phong cách thiết kế theo sở thích mà vẫn đảm bảo được tính thẩm mỹ, hài hòa cho công trình.
- Ngân sách đầu tư hợp lý: Kết cấu 1 trệt và 1 lửng nên thi công nhanh chóng, ít dùng vật liệu hơn so với nhà cao tầng. Từ đó, giảm chi phí nhân công và hoàn thiện, phù hợp với đa dạng ngân sách đầu tư.
- Phù hợp nhiều địa lý: Nhà cấp 4 có gác lửng có kết cấu không quá cao, nên linh hoạt xử lý móng theo từng loại nền đất, phù hợp đặt ở đa dạng địa hình như: đô thị, nông thôn, đồi núi,… Đồng thời, cũng dễ dàng đưa ra các giải pháp thiết kế – thi công phù hợp với điều kiện khí hậu.
Tổng hợp các mẫu nhà cấp 4 đẹp 5x20m có gác lửng
Với mặt tiền 5m và chiều sâu 20m, nhà cấp 4 có gác lửng là lựa chọn phổ biến của các gia đình Việt hiện nay, bởi khả năng cân bằng giữa thẩm mỹ kiến trúc và chi phí đầu tư. Dưới đây là tổng hợp những mẫu thiết kế mẫu nhà cấp 4 đẹp 5×20 có gác lửng với đa dạng phong cách, ngân sách khác nhau:
Mẫu nhà cấp 4 đẹp 5×20 ở nông thôn
Mặt tiền nhà cấp 4 nông thôn 5×20 có gác lửng thường ưu tiên mái Nhật hoặc mái Thái với độ dốc vừa phải, thể hiện tính truyền thống lẫn chịu được khí hậu khắc nghiệt tốt hơn. Đường nét kiến trúc không cầu kỳ nhưng giàu điểm nhấn bằng phào chỉ nhẹ, kết hợp gam màu trung tính nhẹ nhàng để hài hòa cảnh quan sân vườn. Đặc biệt chi tiết bậc tam cấp và cửa gỗ là đặc trưng không thể thiếu, tạo cảm giác vững chãi cho ngôi nhà.

>>Xem thêm: Tổng hợp các mẫu thiết kế nhà đẹp cấp 4, tối ưu chi phí
Mẫu nhà cấp 4 đẹp 5×20 có gác lửng hiện đại, tối giản
Với mẫu nhà cấp 4 phong cách hiện đại, diện tích 5×20 có gác lửng thường sử dụng mái bằng hoặc lệch để tạo nên sự hài hòa hình khối, các đường nét thẳng tinh gọn và mạnh mẽ. Thông thường, các gam màu trung tính được sử dụng chủ đạo để tạo cảm giác thời thượng và dễ dàng làm nổi bật các chi tiết trang trí như: ban công, lam gỗ, cây xanh,… Đây chính là lựa chọn lý tưởng dành cho những gia đình trẻ trung, năng động.

Mẫu nhà cấp 4 đẹp 5×20 có gác lửng 2 phòng ngủ
Với công năng 2 phòng ngủ, kiểu nhà này phù hợp gia đình 3-4 người. Khu vực sinh hoạt chung sẽ được ưu tiên bố trí ở tầng 1, còn gác lửng dành cho không gian phòng ngủ riêng tư cần sự yên tĩnh. Nội thất nên bố trí khoa học để tạo cảm giác thoáng đãng, lối di chuyển thoải mái và thuận tiện. Đặc biệt nên ưu tiên không gian mở để thúc đẩy sự gắn kết giữa các thành viên.

Mẫu nhà cấp 4 có gác lửng 5x20m với 3 phòng ngủ
Với gia đình từ 3-5 thành viên, nhà cấp 4 có gác lửng 5x20m với 3 phòng ngủ đáp ứng đầy đủ công năng mang đến không gian sống thoải mái. Khu vực thông tầng được bố trí làm phòng khách, nơi gia đình tiếp khách và quây quần bên nhau. Diện tích còn lại ở tầng 1 bố trí bếp ăn và 1 phòng ngủ, gác lửng sẽ bố trí 2 phòng ngủ còn lại.

Mẫu nhà cấp 4 đẹp 5×20 có gác lửng 2 phòng ngủ 1 phòng thờ
Với những gia đình đề cao giá trị truyền thống, nhà cấp 4 có gác lửng 5×20 với 2 phòng ngủ 1 phòng thờ là lựa chọn hoàn hảo. Theo đó, khu vực tầng trệt vẫn được sử dụng với công năng là khu sinh hoạt chung; trong khi đó, gác lửng yên tĩnh sẽ bố trí 2 phòng ngủ và 1 phòng thờ. Lưu ý, với kiểu nhà này cần chú trọng vào việc tận dụng ánh sáng tự nhiên để đảm bảo phong thủy cho phòng thờ, không bị âm u hay bí bách.

Mẫu nhà cấp 4 mái Thái đẹp 5×20 có gác lửng
Mái Thái là lựa chọn quen thuộc của mẫu nhà cấp 4 5×20 có gác lửng, giúp công trình nổi bật hơn với vẻ đẹp bề thế. Thiết kế ưu tiên phong cách tân cổ điển, hài hòa với chi tiết mái Thái cao ráo cùng chi tiết hệ trụ cột và phào chỉ điêu khắc tỉ mỉ là điểm nhấn Màu sắc thường kết hợp tương phản như: trắng – cam, trắng đỏ, trắng – xanh,… để dễ dàng làm nổi bật kiến trúc mái Thái khi nhìn từ xa.

Mẫu nhà cấp 4 đẹp 5×20 có gác lửng mái bằng
Mái bằng khi ứng dụng trong thiết kế nhà ống 5x20m cấp 4 có gác lửng mang đến vẻ đẹp hiện đại, vững chắc cho công trình. Ngoại thất thường thiết kế ban công kết hợp cùng cây xanh để giảm cảm giác “thô cứng” của đường nét vuông vức. Ưu điểm của mái bằng là gia chủ có thể dễ dàng cải tạo hoặc nâng cấp không gian sống khi cần thiết, hoặc có thể tận dụng để làm sân vườn.

>>Xem thêm: 50+ Tổng hợp các mẫu nhà cấp 4 2 mặt tiền đẹp, hiện đại
Mẫu nhà cấp 4 đẹp 5×20 có gác lửng mái lệch
Để mặt tiền nhà ống cấp 4 có gác lửng trông ấn tượng hơn, mái lệch là lựa chọn đáng tham khảo. Độ dốc tạo điểm nhấn thị giác, đồng thời cũng giúp thoát nước nhanh chóng hơn. Với kiểu mái này, phong cách hiện đại thường được ưu tiên ứng dụng để tạo nên hiệu ứng về hình khối và hài hòa hơn với các nét thẳng vuông vức.

Mẫu nhà cấp 4 đẹp 5×20 có gác lửng giá khoảng 500 triệu
Để không vượt quá ngân sách 500 triệu, khi thiết kế nhà cấp 4 đẹp 5×20 có gác lửng nên ưu tiên lựa chọn phong cách thiết kế hiện đại – tối giản và mái bằng để tối ưu chi phí. Về màu sắc, các gam màu trung tính được ưu tiên lựa chọn giúp ngôi nhà trông thời thượng và rộng rãi hơn. Đây là mẫu phù hợp với kinh tế của nhiều gia đình trẻ, nhưng vẫn đảm bảo tính thẩm mỹ và công năng.

Mẫu nhà cấp 4 gác lửng đẹp 5×20 khoảng 600 triệu
Với ngân sách 600 triệu, mẫu nhà cấp 4 đẹp 5×20 có gác lửng có thể chọn mái bằng hoặc mái lệch để tiết kiệm chi phí. Phần ngoại thất có thể sử dụng lam gỗ, thiết kế ban công hoặc cửa kính lớn để tạo điểm nhấn. Nội thất bên trong hạn chế trang trí rườm rà kết hợp sử dụng nội thất đa năng, vừa giúp không gian sống thoáng đãng hơn vừa tối ưu chi phí hiệu quả.

>>Xem thêm: Chi phí xây nhà cấp 4 50m2 có gác lửng 2024 là bao nhiêu?
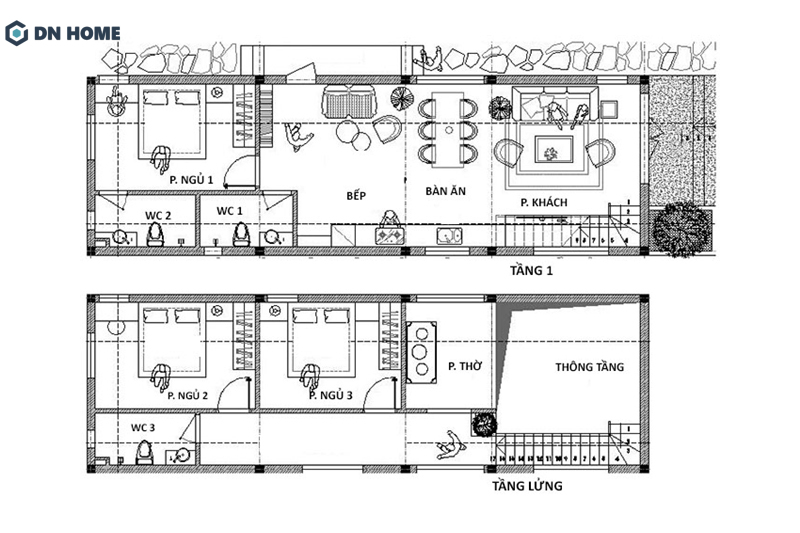
Bản vẽ nhà cấp 4 đẹp 5x20m có gác lửng
Các mẫu nhà cấp 4 đẹp 5×20 có gác lửng thường chia bố cục không gian như sau: tầng trệt ưu tiên sinh hoạt chung, còn tầng lửng tập trung không gian riêng tư hoặc đa năng. Với mặt bằng dài 20m, gác lửng thường được đặt 1/3 hoặc 1/2 phía sau hoặc giữa nhà tùy thiết kế. Dưới đây là gợi ý bản vẽ công năng chi tiết:
- Tầng trệt: Khu vực mặt tiền là phòng khách rộng mở, liên thông ngay sau là khu bàn ăn và bếp tạo thành không gian sinh hoạt chung lớn. liền mạch và rộng rãi. Kế bếp là khu vực nhà vệ sinh dành cho khách. Ở cuối tầng 1 bố trí phòng ngủ 1 để đảm bảo yên tĩnh, đồng thời có thêm nhà vệ sinh riêng tăng tính tiện nghi.
- Tầng lửng: Cầu thang dẫn lên đặt bên phải, bước lên là phòng thờ nằm kế khu vực thông tầng, đảm bảo trang nghiêm nhưng không bị bí bách (phong thủy tốt). Phía sau lần lượt bố trí phòng ngủ 2 và 3, cùng với 1 nhà vệ sinh dùng chung.

Ý tưởng thiết kế nội thất cho nhà có gác lửng 5×20
Không gian của mẫu nhà cấp 4 đẹp 5×20 có gác lửng sẽ thật sự ấn tượng khi nội thất được định hình theo một phong cách chủ đạo rõ ràng. Dưới đây, DN HOME sẽ gợi ý đến bạn mẫu nhà cấp 4 gác lửng 5x20m theo phong cách Japandi – vẻ đẹp giao thoa tinh tế giữa tinh thần tối giản Nhật Bản và vẻ ấm áp của Scandinavian.
Thiết kế nội thất phòng khách
Phòng khách trong mẫu nhà cấp 4 Japandi 5×20 có gác lửng được đặt ở khu vực thông tầng, giúp không gian luôn thoáng đãng, tạo cảm giác thư thái ngay khi bước vào nhà. Đặc trưng phong cách Japan Đi được thể hiện qua bộ bàn ghế sofa được chọn với đường cong mềm mại, thấp và gọn được, đặt trên thảm vải dệt sáng màu. Điểm nhấn kiến trúc như hốc tường vòm phía sau sofa kết hợp ánh sáng vàng ấm, cùng đèn thả mây hoặc mây tre đan giúp không gian tối giản nhưng vẫn cuốn hút.


Thiết kế nội thất phòng bếp
Với thiết kế giếng trời ngay trên khu bếp, phòng bếp trong mẫu nhà cấp 4 đẹp 5×20 có gác lửng luôn đảm bảo đối lưu không khí tốt, hạn chế mùi tốt khi nấu nướng. Hệ tủ bếp chữ L được bố trí sát góc trái, tối ưu diện tích và thao tác giúp việc nấu nướng trở nên thoải mái và tiện nghi hơn.
Chất liệu gỗ sáng màu được dùng xuyên suốt từ tủ bếp đến bàn ghế ăn giúp tổng thể ấm áp, hài hòa với ánh sáng từ giếng trời. Khu tiểu cảnh xanh nhỏ cạnh bàn ăn kết hợp đèn thả trần kim loại mảnh, kiểu dáng hình học tối giản là một điểm nhấn ấn tượng cho khu vực này.

Thiết kế nội thất phòng ngủ
Phòng ngủ trong mẫu nhà cấp 4 có gác lửng 5x20m này được thiết kế với định hướng tối giản và tiện nghi. Chất liệu gỗ sáng màu và các đường nét đơn giản mang đậm tinh thần Japandi được sử dụng chủ đạo. Hệ giường gỗ thông minh, tích hợp ngăn kéo và tab đầu giường giúp tăng không gian lưu trữ mà không bố trí thêm nội thất cồng kềnh. Cửa kính kịch trần là giải pháp lấy sáng hiệu quả, đồng thời tạo cảm giác không gian thoáng đãng và thư giãn hơn.


Thiết kế nội thất phòng vệ sinh
Phòng vệ sinh của mẫu nhà cấp 4 đẹp 5×20 có gác lửng sử dụng gam trắng chủ đạo để tạo cảm giác sạch sẽ, sáng và rộng. Chất liệu gạch thẻ kết hợp cùng sơn hiệu ứng giúp phòng tắm không quá đơn điệu và nhàm chán. Ô cửa kính nhỏ được bố trí trong khu vực phòng tắm là giải pháp thông gió tối ưu, tránh ẩm mốc và mùi khó chịu. Điểm nhấn trong khu vực này là thiết kế âm tường các thiết bị vệ sinh và bồn cầu treo, giúp tiết kiệm diện tích và dễ vệ sinh – đảm bảo thẩm mỹ lẫn tiện nghi.

Thiết kế nội thất phòng thờ
Phòng thờ trong mẫu nhà cấp 4 Japandi 5×20 có gác lửng được đặt ở tầng lửng kế khu vực thông tầng. Mặc dù là không gian mở nhưng được che chắn bằng vách ngăn nhẹ, đảm bảo riêng tư và giữ được sự trang nghiêm. Bàn thờ và tủ thờ bằng gỗ sáng, đồng bộ với thiết kế nội thất tổng thể phong cách Japandi của ngôi nhà. Phía sau tủ thờ, mảng lam gỗ điêu khắc hoa văn truyền thống cách điệu theo phong thủy vừa là điểm nhấn thị giác, vừa thể hiện chiều sâu văn hóa mà không phá vỡ tinh thần tối giản.

>>Xem thêm: 25+ Mẫu nhà cấp 4 ngang 8m đẹp ấn tượng hợp phong thủy
Các lưu ý quan trọng khi xây nhà cấp 4 5×20 có gác lửng
Khi xây dựng mẫu nhà cấp 4 đẹp 5×20 có gác lửng, ngoài thẩm mỹ ngoại thất và bố trí nội thất, chủ đầu tư còn cần chú ý đến những yếu tố sau đây để tối ưu chi phí và đảm bảo thoải mái khi sử dụng lâu dài.
- Lên kế hoạch chi tiết: Việc lập dự toán ngân sách và thời gian thi công rõ ràng cho nhà cấp 4 có gác lửng 5×20 giúp hạn chế phát sinh chi phí, giảm rủi ro và đảm bảo chất lượng. Đặc biệt với những thiết kế có thông tầng và giếng trời (đặc trưng nhà có gác lửng), cần tính toán kỹ kết cấu và giải pháp chống nhiệt và chống thấm.
- Lựa chọn phong cách phù hợp: Nhà ống cấp 4 có gác lửng 5x20m nên ưu tiên các phong cách tối giản tập trung vào sự thoáng mở như hiện đại, Japandi hoặc Scandinavian. Phong cách phù hợp sẽ giúp tạo nên không gian sống hài hòa và thoải mái, nâng cao trải nghiệm sống.
- Bố trí công năng khoa học: Đây là yếu tố quan trọng trong thiết kế mẫu nhà cấp 4 đẹp 5×20 có gác lửng để tránh cảm giác bí. Giải pháp thông tầng, không gian mở và nội thất thông minh sẽ giúp tối ưu diện tích, tận dụng ánh sáng tự nhiên hiệu quả.
- Vật liệu hoàn thiện: Cần chọn vật liệu bền đẹp và dễ bảo trì, đồng thời cũng phải hài hòa với phong cách thiết kế tổng của ngôi nhà. Đây là yếu tố cần đặc biệt chú trọng, vì ảnh hưởng trực tiếp đến ngân sách và chất lượng – thẩm mỹ công trình.
- Chọn nhà thầu uy tín: Đơn vị giàu kinh nghiệm sẽ hiểu rõ đặc thù thi công nhà ống có gác và thông tầng, từ đó đưa ra giải pháp phù hợp ngân sách. Nên ưu tiên nhà thầu có năng lực cá nhân hóa thiết kế, tối ưu vật liệu và có phản hồi tốt từ khách hàng cũ để đảm bảo chất lượng lâu dài.

Nhìn chung, mẫu nhà cấp 4 đẹp 5×20 có gác lửng là giải pháp tối ưu, cân bằng giữa tính thẩm mỹ – công năng – chi phí. Vì vậy, đây là lựa chọn lý tưởng cho các gia đình tại Việt Nam để sở hữu không gian sống thoải mái và lý tưởng. Nếu như bạn đang tìm kiếm đơn vị thiết kế – thi công nhà ở uy tín cùng đồng hành kiến tạo nên không gian sống hoàn mỹ, DN HOME với hơn 10 năm kinh nghiệm trong thi công dân dụng là lựa chọn đáng tin cậy. Liên hệ ngay đến hotline 1800 9398 để được tư vấn chi tiết và báo giá nhanh chóng nhất.





