- Mặc định
- Lớn hơn
Nhà cấp 4 2 phòng ngủ 5×12 là mô hình nhà ở quy mô nhỏ, rất lý tưởng cho các cặp vợ chồng son hoặc gia đình có con nhỏ. Với quỹ đất không quá lớn, bài toán đặt ra cho gia chủ là cần thiết kế vừa đảm bảo công năng sinh hoạt, vừa đẹp mắt mà vẫn tiết kiệm ngân sách. Để giúp bạn dễ dàng hơn trong việc lên ý tưởng và thi công, DN Home sẽ cung cấp những thông tin chi tiết và các mẫu nhà ấn tượng ngay trong bài viết dưới đây!
Đặc điểm của nhà cấp 4 2 phòng ngủ 5×12
Mẫu nhà cấp 4 với thiết kế 2 phòng ngủ 5×12 là lựa chọn khá phổ biến và được nhiều gia đình ưa chuộng. Dưới đây là những điểm đặc trưng cơ bản của mô hình nhà ở này:
- Mặt bằng xây dựng nhỏ: Đặc điểm thường thấy nhất ở mẫu nhà này là sự xuất hiện của tầng lửng. Đây là giải pháp lý tưởng để bố trí thêm phòng ngủ hoặc phòng thờ mà không làm mất đi vẻ đẹp của kiến trúc nhà cấp 4.
- Bố trí khoa học, linh hoạt: Do hạn chế về diện tích, việc sắp xếp mặt bằng hợp lý kết hợp nội thất đa năng, thiết kế thông minh sẽ giúp ngôi nhà cấp 4 2 phòng ngủ 5×12 trở nên thông thoáng, tiện nghi và dễ sử dụng hơn.
- Các phòng chức năng liên kết chặt chẽ: Phòng khách và bếp thường bố trí liền mạch, tạo không gian mở giúp tận dụng ánh sáng tự nhiên, tăng khả năng lưu thông không khí và hạn chế cảm giác bí bách.
- Chi phí đầu tư hợp lý: Nhờ kết cấu một tầng đơn giản, diện tích vừa phải và chỉ gồm 2 phòng ngủ, thời gian thi công được rút ngắn, từ đó giúp gia chủ tiết kiệm đáng kể chi phí xây dựng so với nhiều loại hình nhà ở khác.

Tổng hợp những mẫu nhà cấp 4 2 phòng ngủ 5×12 đẹp tiết kiệm chi phí
Dưới đây là tổng hợp những mẫu nhà cấp 4 với 2 phòng ngủ 5×12 đẹp mà bạn có thể tham khảo để có thêm nhiều ý tưởng thiết kế cho không gian sống của mình:
Mẫu nhà cấp 4 2 phòng ngủ 5×12 hiện đại
Nhà cấp 4 với 2 phòng ngủ 5×12 thiết kế hiện đại, nổi bật trên nền sơn trắng chủ đạo là những mảng tường được ốp đá thẻ xám hoặc gạch giả gỗ, tạo nên sự tương phản màu sắc đầy tinh tế. Phần mái được thiết kế gọn gàng, vuông vức, kết hợp cùng khoảng sân trước nhỏ được bố trí bồn hoa và cây xanh. Tất cả tạo nên một tổng thể hài hòa và mang lại sinh khí cho ngôi nhà ngay từ cái nhìn đầu tiên.



Mẫu nhà cấp 4 2 phòng ngủ 5×12 mái bằng
Đây là sự lựa chọn hoàn hảo cho những ai yêu thích vẻ đẹp tối giản. Ưu điểm lớn nhất của nhà mái bằng là chi phí thi công thấp hơn các loại mái khác. Đặc biệt, phần sân thượng có thể được tận dụng triệt để làm sân phơi, nơi trồng cây cảnh hoặc góc thư giãn ngoài trời, tạo thêm mảng xanh cho không gian sống.



Mẫu nhà cấp 4 2 phòng ngủ 5×12 mái tôn
Sử dụng mái tôn giải pháp thi công nhanh chóng, giúp gia chủ tiết kiệm tối đa ngân sách hoàn thiện ngoại thất. Hiện nay, mặt tiền nhà mái tôn không còn đơn điệu nhờ sự đa dạng của các dòng vật liệu mới như tôn giả ngói với màu sắc bắt mắt. Những lựa chọn này vừa đảm bảo độ bền trước thời tiết, vừa mang lại vẻ đẹp sang trọng, hiện đại không kém gì các mẫu nhà mái ngói truyền thống.



Mẫu nhà cấp 4 2 phòng ngủ 5×12 mái thái
Mẫu nhà cấp 4 với 2 phòng ngủ 5×12 mái thái là giải pháp hoàn hảo cho khí hậu nhiệt đới. Kiến trúc mái thái với độ dốc cao sở hữu khả năng chống nóng và thoát nước mưa vượt trội, hạn chế tối đa tình trạng ứ đọng hay thấm dột. Sự kết hợp giữa công năng ưu việt và hình khối kiến trúc cân đối giúp ngôi nhà vừa bền vững, vừa toát lên vẻ đẹp thẩm mỹ.



Mẫu nhà cấp 4 2 phòng ngủ 5×12 mái lệch
Kiến trúc mái lệch tạo ra hiệu ứng thị giác độc đáo, giúp ngôi nhà cấp 4 2 phòng ngủ diện tích 5x12m nổi bật hơn hẳn so với những mẫu nhà ống vuông vức thông thường. Dù tổng thể công trình dựa trên những hình khối đơn giản, nhưng độ dốc không cân xứng của phần mái đã tạo nên điểm nhấn khác biệt. Qua đó, giúp mặt tiền toát lên vẻ đẹp hiện đại, phóng khoáng và sắc sảo.



>>> Có thể bạn quan tâm: Mẫu thiết kế nhà cấp 4 5×10 có 2 phòng ngủ với bố cục khoa học, tối ưu diện tích và chi phí, phù hợp cho gia đình trẻ hoặc vợ chồng mới xây nhà.
Mẫu nhà cấp 4 2 phòng ngủ 5×12 có phòng thờ
Văn hóa thờ cúng tổ tiên là nét đẹp truyền thống của người Việt, do đó dù với diện tích 5x12m không quá lớn, bạn vẫn có thể khéo léo bố trí không gian tâm linh trang nghiêm. Phòng thờ có thể được thiết kế kết hợp với phòng khách hoặc đặt một gian nhỏ hướng ra mặt tiền. Cách bố trí này vừa tiết kiệm diện tích, vừa đảm bảo yếu tố phong thủy.



Mẫu nhà cấp 4 2 phòng ngủ 5×12 có sân vườn
Điểm nhấn của mẫu thiết kế này là sự kết nối không giới hạn giữa trong và ngoài. Khoảng sân vườn phía trước kết hợp cùng hệ cửa kính lớn giúp ngôi nhà luôn ngập tràn ánh sáng và gió trời. Sắc xanh của cây cỏ hòa quyện với kiến trúc mặt tiền tạo nên một tổng thể hài hòa, mang lại cảm giác bình yên và gần gũi với thiên nhiên.



Mẫu nhà cấp 4 2 phòng ngủ 5×12 có gác lửng
Thay vì tốn kém nhiều chi phí để xây thêm tầng lầu, gác lửng giúp gia tăng đáng kể diện tích sử dụng mà vẫn giữ được sự thông thoáng nhờ kết cấu trần cao. Gia chủ có thể tận dụng để bố trí thêm phòng ngủ, phòng thờ hoặc khu làm việc yên tĩnh, giải quyết triệt để bài toán thiếu phòng cho gia đình đông thành viên.



>>> Tìm hiểu thêm: Chi phí xây nhà cấp 4 50m2 có gác lửng sẽ giúp bạn dự trù kinh phí chính xác hơn
Bản vẽ bố trí mặt bằng nhà cấp 4 2 phòng ngủ 5×12
Bố trí công năng cho diện tích 5x12m là bài toán đòi hỏi sự tính toán kỹ lưỡng để vừa đảm bảo đủ 2 phòng ngủ, vừa giữ được sự thông thoáng. Dưới đây là 5 phương án bố trí mặt bằng khoa học, giải quyết tốt các vấn đề về diện tích và phong thủy mà bạn có thể tham khảo:
Bản vẽ nhà cấp 4 2 phòng ngủ 5×12 có sân trước
Thiết kế này dành một phần diện tích phía trước làm sân, đáp ứng nhu cầu để xe và trồng cây xanh tạo cảnh quan. Ở bên trong, phòng khách được bố trí ngay sau cửa chính để đón ánh sáng tự nhiên, tiếp nối là khu vực bếp ăn. Hai phòng ngủ và nhà vệ sinh chung được đặt về phía cuối nhà. Cách sắp xếp này giúp khu vực nghỉ ngơi tách biệt với tiếng ồn, đảm bảo sự yên tĩnh cần thiết.

Bản vẽ nhà cấp 4 2 phòng ngủ 5×12 có gara
Để đáp ứng nhu cầu đỗ xe ô tô, gara được bố trí gọn gàng một bên và có lối đi phụ dẫn trực tiếp vào không gian sinh hoạt. Phòng khách nằm ngay vị trí trung tâm, tiếp đó là hai phòng ngủ. Khu vực bếp nấu được đặt ở cuối nhà, gần cửa ra sân sau. Vị trí này giúp không khí lưu thông tốt, hạn chế việc mùi thức ăn ảnh hưởng đến phòng khách và phòng ngủ.

Bản vẽ nhà cấp 4 2 phòng ngủ 5×12 phòng khách liền kề bếp
Nhằm khắc phục hạn chế về diện tích, giải pháp liên thông phòng khách và bếp ăn được ưu tiên sử dụng. Việc loại bỏ vách ngăn cố định giúp không gian trở nên rộng rãi và thoáng đãng hơn. Khu vực nghỉ ngơi gồm hai phòng ngủ được bố trí kín đáo phía sau. Ngoài ra, phần diện tích bên hông nhà được tận dụng làm sân phơi, vừa đảm bảo công năng sử dụng vừa giữ được thẩm mỹ chung.

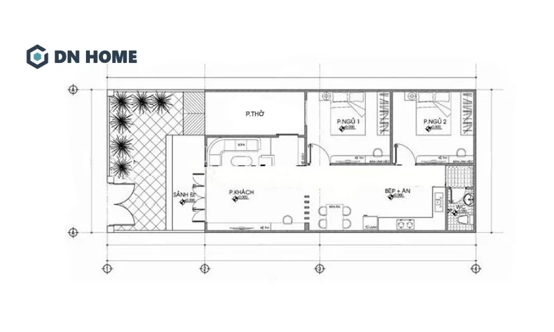
Bản vẽ nhà cấp 4 2 phòng ngủ 5×12 có phòng thờ
Mặt bằng công năng mẫu nhà này được phân chia rất rõ ràng. Từ cửa chính đi vào là phòng khách và phòng thờ. Trong đó, phòng thờ được đặt hướng ra mặt tiền để đảm bảo yếu tố phong thủy và sự trang nghiêm. Tiếp đến là khu vực bếp ăn và vệ sinh chung. Hai phòng ngủ có diện tích tương đồng được bố trí ở vị trí cuối cùng để đảm bảo sự riêng tư.

>>> Đọc thêm: Mẫu nhà cấp 4 3 phòng ngủ 5×20 được thiết kế khoa học, tối ưu diện tích và đáp ứng đầy đủ nhu cầu sinh hoạt của gia đình hiện đại.
Bản vẽ nhà cấp 4 5×12 có gác lửng
Xây dựng gác lửng là phương án hiệu quả để mở rộng diện tích sử dụng trên mặt bằng 5x12m. Tầng trệt được bố trí các không gian sinh hoạt chung gồm phòng khách, bếp ăn và một phòng ngủ master. Tầng lửng được thiết kế thêm một phòng ngủ và khu vực phòng thờ. Cách bố trí này giúp phân chia không gian hợp lý, đáp ứng đủ nhu cầu sinh hoạt cho gia đình có nhiều thành viên.

Ý tưởng thiết kế nội thất nhà cấp 4 2 phòng ngủ 5×12 đẹp, sang trọng
Với quỹ đất xây dựng vỏn vẹn 5x12m, việc lựa chọn và sắp xếp nội thất cần được tính toán khoa học để tối ưu hóa không gian, tránh cảm giác chật chội. Dưới đây là những gợi ý thiết kế chi tiết cho từng khu vực chức năng chính mà bạn có thể áp dụng cho tổ ấm của mình.
Bố trí nội thất phòng khách
Bí quyết đầu tiên để xóa tan cảm giác bí bách là thiết kế không gian mở, loại bỏ hoàn toàn vách ngăn giữa phòng khách và bếp. Điều này giúp tạo ra dòng chảy liền mạch cho không gian. Đồng thời ở khu vực phòng khách, bạn hãy ưu tiên các món đồ nội thất thông minh với đường nét tinh giản, kết hợp cùng gam màu trung tính làm chủ đạo để đánh lừa thị giác, giúp căn phòng trông rộng hơn thực tế. Đừng quên tạo điểm nhấn không gian bằng tranh treo tường, đèn trang trí hay cây xanh để tăng phần sinh động.

Bố trí nội thất phòng bếp + ăn
Với những không gian bếp, khu vực ăn uống liền kề, nên ưu tiên bố cục mở để hạn chế cảm giác chật hẹp. Tủ bếp chữ I được bố trí sát tường giúp tối ưu diện tích di chuyển, kết hợp đảo bếp ở giữa vừa tăng không gian lưu trữ, vừa đóng vai trò phân chia nhẹ nhàng giữa khu nấu nướng và bàn ăn. Để không gian trông thoáng và sạch sẽ hơn, bạn có thể sử dụng mặt đá, gam màu sáng cho tủ bếp. Đồng thời, bàn ăn nên chọn kiểu dáng đơn giản, kích thước vừa phải để đảm bảo lối đi thuận tiện và sinh hoạt hằng ngày thoải mái.

Bố trí nội thất phòng ngủ
Trong không gian nghỉ ngơi có diện tích khiêm tốn, kích thước nội thất đóng vai trò then chốt. Thay vì những món đồ cồng kềnh, bạn hãy chọn giường tủ có kích thước vừa vặn, tỷ lệ thuận với căn phòng. Bí quyết để không gian này trở nên chill và sang trọng hơn nằm ở hệ thống chiếu sáng dịu nhẹ kết hợp cùng tranh nghệ thuật, biến phòng ngủ nhỏ thành nơi tái tạo năng lượng lý tưởng.


Nội thất phòng vệ sinh
Phòng vệ sinh được thiết kế theo phong cách hiện đại, tối giản với sự kết hợp hài hòa giữa đá marble sáng màu và vật liệu gỗ, tạo cảm giác ấm cúng nhưng vẫn sạch sẽ, sang trọng. Khu vực tắm đứng được ngăn bằng vách kính trong suốt giúp không gian luôn thông thoáng và khô ráo. Đồng thời, việc bố trí kệ âm tường sẽ giúp không gian nhỏ trở nên thoáng đãng, tiện nghi và dễ sử dụng hơn.

>>> Gợi ý ngay: Mẫu nhà cấp 4 80m2 3 phòng ngủ có kiến trúc đẹp, không gian thoáng đãng và đáp ứng đầy đủ nhu cầu sinh hoạt hàng ngày.
Chi phí xây nhà cấp 4 2 phòng ngủ 5×12 trọn gói bao nhiêu?
Để biết được chi phí xây nhà cấp 4 2 phòng ngủ 60m2 trọn gói có giá bao nhiêu, chủ đầu tư cần xác định đơn giá thi công cho từng hạng mục xây dựng. Hiện nay, đơn giá tham khảo năm 2025 là:
| HẠNG MỤC | ĐƠN GIÁ |
| Chi phí nhân công | 1.500.000 – 2.000.000 VNĐ/m2 |
| Chi phí xây nhà thô và nhân công hoàn thiện | 3.500.000 – 3.800.000 VNĐ/m2 |
| Chi phí xây nhà trọn gói | 5.000.000 – 8.000.000 VNĐ/m2 |
| CÔNG THỨC TÍNH CHI PHÍ XÂY NHÀ |
| Chi phí xây nhà = Diện tích xây dựng x Đơn giá/m2 |
Trong đó, cách tính tổng diện tích xây dựng như sau:
- Diện tích móng đơn: 30% – 50% diện tích sàn
- Diện tích sàn trệt: 100% diện tích
- Phần mái: 30% cho mái tôn, 50% mái bằng và 70% cho mái thái.
- Gác lửng (nếu có): 50% diện tích phần gác lửng
Ví dụ dự toán cho nhà mái bằng:
- Diện tích móng: 60 x 35% = 21m2
- Diện tích sàn: 60 x 100% = 60m2
- Diện tích mái tôn: 60 x 50% = 30m2
=> Tổng diện tích xây dựng sẽ là 111m2
Theo như công thức ở trên, chi phí cho từng hạng mục thi công nhà cấp 4 2 phòng ngủ 5×12 sẽ là:
- Chi phí nhân công hoàn thiện: 111 x 1.500.000 = 166.500.000VNĐ
- Phần thô và nhân công hoàn thiện: 111 x 3.500.000 = 388.500.000 VNĐ
- Chi phí xây nhà trọn gói: 111 x 5.000.000 = 555.000.000
Trên đây chỉ là chi phí tham khảo, mức giá này sẽ có chênh lệch thực tế tuỳ vào phong cách thiết kế, vật liệu xây dựng, chất lượng nội thất,… Tốt nhất, gia chủ nên tìm kiếm và lựa chọn đơn vị thi công uy tín, để được tư vấn, hỗ trợ chi tiết và có dự toán kinh phí thực hiện một cách chính xác nhất cho ngôi nhà nhỏ của mình.
Kinh nghiệm xây nhà cấp 4 2 phòng ngủ 5×12 tối ưu chi phí thi công
Dưới đây là những kinh nghiệm giúp bạn quản lý dự án xây dựng tổ ấm của mình một cách hiệu quả nhất.
Dự trù kinh phí xây dựng hợp lý
Việc dự trù kinh phí chi tiết là bước đầu tiên và quan trọng nhất. Bên cạnh tổng chi phí dự toán cho vật tư và nhân công, bạn bắt buộc phải chuẩn bị thêm một khoản tiền dự phòng, thường chiếm khoảng 10% – 20% tổng ngân sách. Khoản tiền này dùng để chi trả cho các hạng mục phát sinh hoặc biến động giá cả thị trường, giúp công trình không bị gián đoạn do thiếu hụt tài chính giữa chừng.

Lựa chọn kiểu dáng và phong cách phù hợp
Kiểu dáng kiến trúc quyết định rất nhiều đến chi phí xây dựng. Những mẫu nhà cầu kỳ như cổ điển hay tân cổ điển thường đòi hỏi thời gian thi công lâu và chi phí nhân công cao do nhiều chi tiết phức tạp. Ngược lại, lựa chọn phong cách hiện đại với đường nét đơn giản sẽ giúp tiết kiệm đáng kể ngân sách mà vẫn đảm bảo được sự tinh tế, thoáng đãng cho ngôi nhà có diện tích khiêm tốn
Bố trí công năng phải được tối ưu khoa học
Với diện tích 5x12m, quá trình bố trí công năng cần được tính toán dựa trên số lượng thành viên và thói quen sinh hoạt hàng ngày. Thay vì cố gắng xây nhiều phòng nhỏ gây chật chội, hãy tập trung vào sự tiện nghi và khoa học trong việc sắp xếp không gian. Một mặt bằng công năng hợp lý sẽ giúp tối ưu hóa diện tích sử dụng, tránh lãng phí không gian vào những khu vực không cần thiết.

Chọn nguyên vật liệu giá thành phù hợp, có chất lượng
Để tiết kiệm chi phí nhưng vẫn đảm bảo chất lượng, bạn không nhất thiết phải dùng toàn bộ vật liệu nhập khẩu đắt đỏ. Hiện nay có rất nhiều thương hiệu trong nước uy tín cung cấp gạch ốp lát, thiết bị vệ sinh với chất lượng tốt và mẫu mã đẹp. Hãy dành thời gian khảo sát và chọn những loại vật liệu có mức giá nằm trong ngân sách cho phép nhưng vẫn đảm bảo độ bền lâu dài cho công trình.

Giám sát chặt chẽ quá trình xây dựng
Việc theo dõi sát sao quá trình xây dựng giúp đảm bảo nhà thầu làm đúng kỹ thuật và tiến độ cam kết. Sự giám sát kỹ lưỡng sẽ giúp phát hiện sớm các sai sót để điều chỉnh kịp thời, tránh tình trạng phải đập đi xây lại gây tốn kém và lãng phí vật tư. Nếu không có chuyên môn hoặc thời gian, bạn có thể cân nhắc thuê người giám sát độc lập để yên tâm hơn về chất lượng công trình.

Lựa chọn nhà thầu xây dựng giàu kinh nghiệm
Chọn được một nhà thầu có tâm và có tầm là yếu tố then chốt để có một ngôi nhà hoàn hảo. Những đơn vị giàu kinh nghiệm thường có quy trình làm việc rõ ràng, minh bạch và cam kết bảo hành uy tín. Họ cũng sẽ đưa ra những lời khuyên hữu ích giúp bạn lựa chọn giải pháp thi công hiệu quả nhất, giúp kiểm soát tốt chi phí và đảm bảo ngôi nhà được hoàn thiện đúng như mong đợi.

DN Home – Công ty chuyên thiết kế thi công nhà cấp 4 2 phòng ngủ uy tín
Với hơn 10 năm kinh nghiệm trong lĩnh vực, DN Home đã khẳng định vị thế vững chắc thông qua hàng nghìn công trình chất lượng, trở thành đối tác tin cậy của nhiều chủ đầu tư. Khi lựa chọn đơn vị để hiện thực hóa mẫu nhà cấp 4 2 phòng ngủ 5x12m, quý khách hàng hoàn toàn yên tâm bởi 4 lý do sau:
- Đội ngũ nhân sự chất lượng cao: DN Home sở hữu đội ngũ nhân sự lành nghề, không chỉ am hiểu sâu sắc về chuyên môn, kỹ thuật mà còn nắm vững các nguyên tắc về phong thủy. Điều này đảm bảo mỗi công trình đều đạt sự cân bằng hoàn hảo giữa thẩm mỹ, công năng, vượng khí.
- Quy trình làm việc chuyên nghiệp: Mọi giai đoạn từ tư vấn, khảo sát thực tế, lên ý tưởng layout đến phối cảnh 3D,… đều được thực hiện theo quy trình minh bạch, rõ ràng, đảm bảo sát với nhu cầu và mong muốn của gia chủ.
- Sở hữu xưởng sản xuất riêng: Nhờ có hệ thống nhà xưởng riêng, không qua trung gian, DN Home kiểm soát chặt chẽ chất lượng sản phẩm đầu ra và mang đến mức giá thi công cạnh tranh nhất thị trường.
- Chính sách bảo hành dài hạn: DN Home cam kết đồng hành cùng khách hàng ngay cả khi bàn giao. Mọi sản phẩm nội thất đều được bảo hành 24 tháng và hỗ trợ bảo trì nhanh chóng nếu có vấn đề phát sinh.
Liên hệ DN Home qua hotline 1800 9398 để được tư vấn, hỗ trợ miễn phí và nhanh chóng sở hữu những giải pháp biến không gian nhà cấp 4 2 phòng ngủ 5×12 trở nên ấn tượng, tiện nghi.

Có thể thấy, diện tích hạn chế chưa bao giờ là rào cản để tạo nên một ngôi nhà đẹp. Mẫu nhà cấp 4 2 phòng ngủ 5×12 với thiết kế thông minh không chỉ giải quyết tốt vấn đề công năng mà còn mang lại cảm giác ấm cúng, gần gũi cho các thành viên. Việc lựa chọn đúng phong cách kiến trúc phù hợp sẽ giúp không gian sống trở nên thoáng đãng và thoải mái nhất cho cả gia đình.
Bài viết cùng chủ đề
- Bí quyết cải tạo nhà cấp 4 thành 2 tầng đẹp và tiết kiệm nhất
- 35+ Các nhà cấp 4 2 phòng ngủ 1 phòng thờ chuẩn phong thuỷ
- 99+ Mẫu nhà cấp 4 4 phòng ngủ 150m2 đẹp, tối ưu chi phí
- 55+ Mẫu nhà cấp 4 1 phòng ngủ tiện nghi, đa năng năm 2024
- Dự toán chi phí xây nhà cấp 4 150m2 mới nhất 2024
- 1001+ Mẫu thiết kế nhà cấp 4 5×10 có 2 phòng ngủ ĐẸP nhất
- Chi phí xây nhà cấp 4 50m2 có gác lửng 2024 là bao nhiêu?
- TOP 45+ Mẫu nhà cấp 4 80m2 3 phòng ngủ chi phí thấp
- 55+ mẫu nhà cấp 4 chữ L 4 phòng ngủ đẹp SIÊU tiết kiệm
- 35+ Mẫu nhà cấp 4 3 phòng ngủ 5×20 đẹp, ấn tượng nhất



