- Mặc định
- Lớn hơn
Nhà cấp 4 hiện nay không chỉ phổ biến ở khu vực nông thôn mà còn được nhiều gia đình tại đô thị lựa chọn nhờ thiết kế gọn gàng, chi phí xây dựng hợp lý và công năng sử dụng tiện nghi. Hiện nay, các mẫu nhà cấp 4 ngày càng đa dạng về phong cách, từ hiện đại, tối giản đến những thiết kế tối ưu không gian sống cho gia đình. Trong bài viết này, DN HOME sẽ tổng hợp các mẫu thiết kế nhà đẹp cấp 4, tối ưu chi phí và công năng đang được ưa chuộng hiện nay.
Xu hướng thiết kế nhà cấp 4 hiện đại với chi phí tiết kiệm
Thiết kế nhà đẹp cấp 4 theo phong cách hiện đại đang được nhiều gia đình lựa chọn nhờ sự đơn giản, tiện nghi và tối ưu chi phí xây dựng. Dưới đây là một số xu hướng thiết kế đơn giản, bạn có thể tham khảo thêm.
Những mẫu nhà cấp 4 nông thôn diện tích rộng cho gia đình nhiều thế hệ
Ở khu vực nông thôn, thiết kế nhà đẹp cấp 4 thường có lợi thế về diện tích đất rộng nên việc bố trí không gian sinh hoạt cũng thoải mái hơn. Các mẫu thiết kế nhà này thường được xây dựng theo chiều ngang với nhiều phòng ngủ, phù hợp cho gia đình đông thành viên hoặc nhiều thế hệ cùng sinh sống. Ngoài ra, nhiều gia đình còn thiết kế thêm sân vườn, cây xanh hoặc khoảng sân trước nhà để tạo không gian sống thoáng đãng và gần gũi với thiên nhiên.



Kiểu nhà cấp 4 mái Thái sang trọng phù hợp khí hậu Việt Nam
Trong các mẫu thiết kế nhà đẹp cấp 4, nhà mái Thái luôn được đánh giá cao nhờ vẻ đẹp sang trọng và khả năng thích nghi tốt với khí hậu Việt Nam. Phần mái có độ dốc lớn giúp thoát nước mưa nhanh, hạn chế thấm dột và giữ cho không gian bên trong luôn mát mẻ. Những mẫu thiết kế sang trọng kết hợp mái Thái thường tạo cảm giác bề thế, thanh thoát và mang lại nét kiến trúc nổi bật cho tổng thể ngôi nhà.



>>> Xem thêm:Tổng hợp các mẫu nhà cấp 4 mái Thái chữ L đẹp mê mẩn
Giải pháp nhà cấp 4 mái tôn đơn giản và tối ưu ngân sách
Bên cạnh mái Thái, thiết kế nhà đẹp cấp 4 mái tôn cũng là lựa chọn phổ biến nhờ chi phí thấp và thời gian thi công nhanh. Các mẫu nhà sử dụng mái tôn thường có kết cấu đơn giản nhưng vẫn đảm bảo khả năng chống nắng mưa tốt. Ngoài ra, nhiều loại tôn hiện nay còn được cải tiến với lớp cách nhiệt và chống ồn, giúp không gian bên trong luôn thoáng mát và dễ chịu, phù hợp với điều kiện kinh tế của nhiều gia đình.



Các giải pháp tăng diện tích sử dụng cho nhà cấp 4
Một số giải pháp phổ biến là mở rộng không gian theo chiều ngang, bố trí phòng khách liên thông với bếp,.. Nhờ cách sắp xếp hợp lý, thiết kế nhà cấp 4 vẫn đảm bảo đầy đủ công năng sử dụng mà không cần xây thêm nhiều tầng.
Thiết kế nhà cấp 4 có gác lửng – Tăng không gian, giữ nguyên chiều cao
Nhà cấp 4 có gác lửng là giải pháp được nhiều gia đình lựa chọn khi muốn tăng diện tích sử dụng nhưng vẫn giữ kết cấu nhà một tầng. Trong các mẫu thiết kế nhà đẹp cấp 4, phần gác lửng thường được tận dụng làm phòng ngủ, phòng làm việc hoặc khu sinh hoạt chung. Nhờ vậy, ngôi nhà trở nên rộng rãi và tiện nghi hơn mà chi phí xây dựng vẫn thấp hơn so với việc xây thêm tầng. Nhà có gác lửng thường kết hợp gam màu sáng và cửa kính lớn để tạo cảm giác thông thoáng cho toàn bộ không gian.



>>> Xem thêm: Chi phí xây nhà cấp 4 50m2 có gác lửng là bao nhiêu?
Bố trí mặt bằng nhà cấp 4 nông thôn 4 phòng ngủ khoa học
Với những gia đình đông thành viên, việc lựa chọn thiết kế nhà đẹp cấp 4 có 4 phòng ngủ là giải pháp hợp lý để đảm bảo không gian riêng tư cho mỗi người. Nhờ lợi thế diện tích đất rộng ở nông thôn, ngôi nhà thường bố trí phòng khách ở trung tâm, hai bên là các phòng ngủ và khu bếp phía sau. Cách sắp xếp này giúp các không gian sinh hoạt chung và riêng được phân chia rõ ràng, tạo sự tiện nghi và thoải mái cho gia đình nhiều thế hệ cùng sinh sống.



Mẫu nhà ống cấp 4 hiện đại cho diện tích mặt tiền hẹp
Đối với những khu đất có mặt tiền hẹp, thiết kế nhà đẹp cấp 4 theo kiểu nhà ống là giải pháp tối ưu được nhiều gia đình lựa chọn. Kiểu nhà này thường có chiều ngang nhỏ nhưng chiều sâu dài, giúp tận dụng tối đa diện tích đất xây dựng. Dạng nhà ống thường được bố trí không gian liên thông giữa phòng khách, bếp và khu sinh hoạt chung để tạo cảm giác rộng rãi hơn. Ngoài ra, việc kết hợp giếng trời hoặc sân nhỏ phía sau cũng giúp ngôi nhà luôn thông thoáng và đầy đủ ánh sáng tự nhiên.



Bản vẽ và dự toán chi phí xây dựng nhà cấp 4
Trước khi xây dựng, việc chuẩn bị bản vẽ và dự toán chi phí là bước rất quan trọng trong thiết kế nhà cấp 4. Bản vẽ giúp gia chủ hình dung rõ bố cục không gian, cách bố trí phòng ốc cũng như các hạng mục cần thi công.
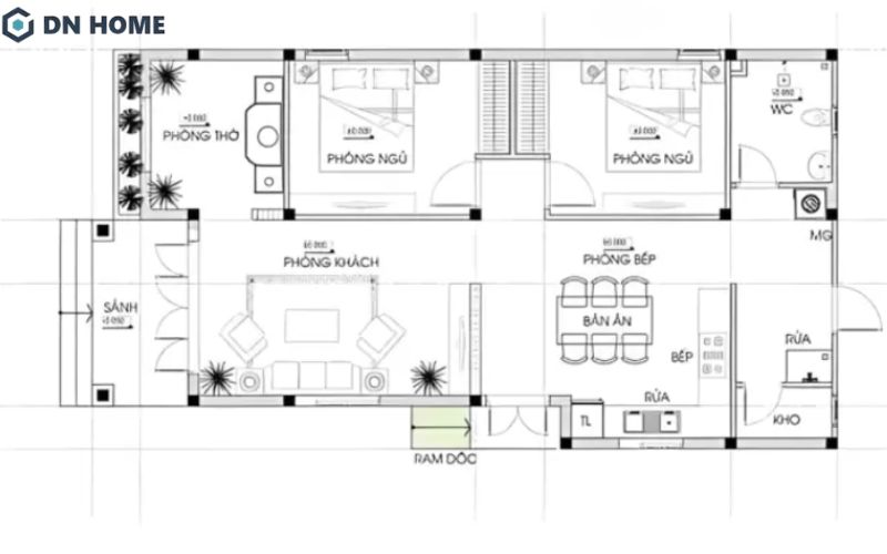
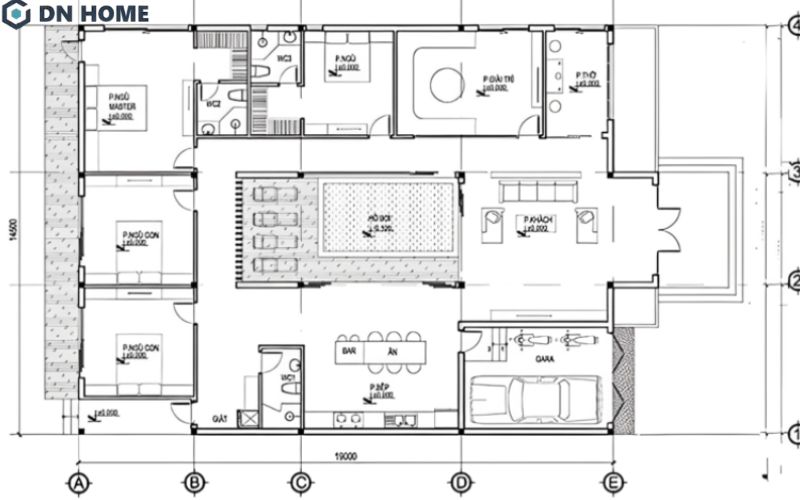
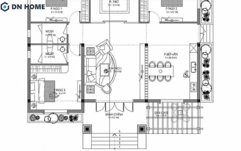
Demo bản vẽ chi tiết các mẫu nhà cấp 4 được ưa chuộng nhất
Dưới đây là một số mẫu bản vẽ thiết kế nhà đẹp cấp 4 mà bạn có thể tham khảo. Các bản vẽ thường thể hiện đầy đủ mặt bằng công năng, vị trí phòng khách, phòng ngủ, khu bếp và nhà vệ sinh để gia chủ dễ dàng hình dung tổng thể ngôi nhà. Tùy theo nhu cầu sử dụng mà gia đình có thể lựa chọn các mẫu như nhà cấp 4 mái tôn, mái Thái hoặc nhà cấp 4 có gác lửng với bố cục không gian hợp lý.



>>> Bản vẽ kỹ thuật nhà cấp 4 100m2 có 3 phòng ngủ tại đây.
Bảng dự kiến chi phí xây dựng nhà cấp 4 theo từng hạng mục
Chi phí xây dựng thiết kế nhà đẹp cấp 4 thường phụ thuộc vào nhiều yếu tố như diện tích xây dựng, kiểu kiến trúc, giá vật liệu và chi phí nhân công tại từng khu vực. Tuy nhiên, nếu biết cách tính toán hợp lý, gia chủ hoàn toàn có thể xây dựng một ngôi nhà khang trang với ngân sách khoảng vài trăm triệu đồng. Việc tham khảo bảng dự toán chi phí theo từng hạng mục cũng giúp bạn dễ dàng kiểm soát ngân sách và lên kế hoạch xây dựng phù hợp.

Bạn có thể liên hệ với DN HOME qua số hotline 1800 9398 để được tư vấn và nhận được báo giá chi tiết nhất.
Giải pháp nâng cấp và cải tạo không gian sống
Sau một thời gian sử dụng, nhiều ngôi nhà thường xuất hiện tình trạng xuống cấp. Thay vì xây dựng lại toàn bộ, gia chủ có thể cải tạo một số hạng mục như mở rộng không gian, thay đổi bố cục phòng,…
Dịch vụ cải tạo nhà cấp 4 cũ thành không gian mới rẻ – đẹp – nhanh
Hiện nay, nhiều đơn vị cung cấp dịch vụ cải tạo thiết kế nhà đẹp cấp 4, giúp biến những ngôi nhà cũ thành không gian sống mới mẻ và tiện nghi. Thay vì tốn nhiều chi phí để xây dựng lại từ đầu, gia chủ có thể lựa chọn cải tạo như nâng thêm gác lửng, mở rộng phòng hoặc thay đổi thiết kế mặt tiền để tăng tính thẩm mỹ. Với sự hỗ trợ của kiến trúc sư và đội ngũ thi công chuyên nghiệp, ngôi nhà cấp 4 cũ hoàn toàn có thể được nâng cấp nhanh chóng, tiết kiệm chi phí nhưng vẫn đảm bảo không gian sống thoải mái và hiện đại.

Đơn vị tư vấn và thiết kế nhà đẹp cấp 4 uy tín tại Đà Nẵng
Việc lựa chọn đơn vị tư vấn uy tín là yếu tố quan trọng khi thiết kế nhà cấp 4. Một đơn vị chuyên nghiệp sẽ hỗ trợ gia chủ từ khâu lên ý tưởng, thiết kế bản vẽ đến thi công hoàn thiện, đảm bảo ngôi nhà vừa đẹp, vừa tối ưu chi phí xây dựng.
Năng lực thiết kế và thi công trọn gói của DN Home
DN Home là đơn vị hoạt động trong lĩnh vực thiết kế nhà đẹp cấp 4 với nhiều năm kinh nghiệm trong việc tư vấn và thi công các công trình nhà ở. Đội ngũ kiến trúc sư luôn chú trọng đến tính thẩm mỹ, công năng sử dụng và sự phù hợp với ngân sách của gia chủ. Nhờ đó, các mẫu thiết kế nhà cấp 4 do DN Home thực hiện đều đảm bảo sự hài hòa giữa kiến trúc, không gian sống và chi phí xây dựng.

Quy trình làm việc chuyên nghiệp đảm bảo tiến độ và chất lượng
Để đảm bảo hiệu quả trong từng dự án thiết kế nhà đẹp cấp 4, DN Home xây dựng quy trình làm việc rõ ràng từ khâu tiếp nhận nhu cầu, khảo sát thực tế đến lên bản vẽ thiết kế và triển khai thi công. Mỗi công đoạn đều được thực hiện bởi đội ngũ chuyên môn nhằm đảm bảo tiến độ và chất lượng công trình. Nhờ quy trình chuyên nghiệp này, các mẫu thiết kế khi hoàn thiện đều đáp ứng tốt yêu cầu về thẩm mỹ, công năng và độ bền trong quá trình sử dụng.

Trên đây là những thông tin tổng hợp về thiết kế nhà đẹp cấp 4 cùng các mẫu nhà, bản vẽ và giải pháp tối ưu không gian đang được nhiều gia đình quan tâm hiện nay. Hy vọng bài viết sẽ giúp bạn có thêm ý tưởng phù hợp để xây dựng một ngôi nhà cấp 4 đẹp, tiện nghi và tiết kiệm chi phí. Nếu bạn đang cần tư vấn thiết kế nhà cấp 4 đẹp, hiện đại, hãy liên hệ với DN Home qua số hotline 1800 9398 để được hỗ trợ nhanh chóng nhất!




