- Default
- Bigger
Phòng ngủ là nơi nghỉ ngơi và tái tạo năng lượng quan trọng nhất trong ngôi nhà. Vì vậy, việc xác định tiêu chuẩn diện tích phòng ngủ bao nhiêu m2 là hợp lý luôn là bài toán khó khi xây dựng nhà ở.
Một không gian quá hẹp sẽ gây bí bách, trong khi quá rộng lại tạo cảm giác trống trải. Vậy diện tích bao nhiêu là phù hợp để vừa đảm bảo tiện nghi, vừa tối ưu chi phí? Hãy cùng Interior Highlights tìm hiểu ngay dưới đây.
Diện tích phòng ngủ bao nhiêu m2 là hợp lý?
Thực tế, không có một con số cố định áp dụng cho mọi công trình. Diện tích phòng ngủ cần được tính toán dựa trên nhiều yếu tố như: công năng sử dụng, mức độ tiện nghi mong muốn, yếu tố thẩm mỹ, thói quen sinh hoạt của từng thành viên và cả ngân sách đầu tư.

Tuy nhiên, để dễ hình dung, bạn có thể tham khảo một số diện tích phòng ngủ phổ biến hiện nay như: 12m2, 13m2, 15m2, 16m2, 18m2, 20m2, 25m2 hoặc những phòng ngủ lớn lên đến 40-50m2 đối với nhà biệt thự, villa cao cấp.
- Đối với căn hộ chung cư, diện tích phòng ngủ tiêu chuẩn thường dao động khoảng 12-15m2. Đây là mức diện tích vừa đủ để bố trí giường, tủ quần áo và một số nội thất cơ bản, đảm bảo sự riêng tư và thoải mái mà không chiếm quá nhiều diện tích tổng thể căn hộ.
- Với nhà cấp 4 (quy mô trung bình) và nhà phố, diện tích phòng ngủ thường từ 15-25m2. Khoảng diện tích này được đánh giá là hợp lý vì vừa đảm bảo công năng sử dụng, tiện nghi sinh hoạt, tính thẩm mỹ, vừa mang lại không gian nghỉ ngơi thoải mái vừa cân đối mặt bằng chung của ngôi nhà.

Tiêu chuẩn diện tích phòng ngủ theo từng đối tượng sử dụng
Bên cạnh loại hình nhà ở, diện tích phòng ngủ cũng cần được điều chỉnh phù hợp với từng đối tượng sử dụng. Mỗi nhóm tuổi sẽ có nhu cầu sinh hoạt, nghỉ ngơi và mức độ tiện nghi khác nhau, vì vậy việc tính toán diện tích hợp lý ngay từ đầu sẽ giúp không gian vừa thoải mái vừa đảm bảo tính lâu dài.
Tiêu chuẩn diện tích phòng ngủ cho vợ chồng
Với phòng ngủ dành cho vợ chồng, 12m2 được xem là mức diện tích tối thiểu để đảm bảo không gian riêng tư cơ bản. Tuy nhiên, nếu điều kiện cho phép, gia chủ vẫn nên ưu tiên diện tích rộng thoáng hơn để sinh hoạt và thư giãn thoải mái.
Phòng ngủ không chỉ là nơi nghỉ ngơi mà còn là không gian vun đắp hạnh phúc gia đình. Vì vậy, diện tích phòng ngủ cho vợ chồng nên đủ rộng để mở rộng khu vực lưu trữ, bố trí bàn trang điểm, kệ trang trí hoặc thậm chí kết hợp góc làm việc nhỏ. Điều này giúp không gian linh hoạt hơn, đáp ứng nhiều nhu cầu sử dụng trong cuộc sống hiện đại.

>>> Tìm hiểu thêm: Các mẫu thiết kế phòng ngủ 20m2 cho vợ chồng tối ưu công năng và chuẩn phong thủy.
Tiêu chuẩn diện tích phòng ngủ cho trẻ em
Đối với trẻ em, diện tích phòng ngủ trung bình khoảng 15m2 là phù hợp. Đây là mức diện tích vừa đủ để các bé có không gian nghỉ ngơi, vui chơi và học tập trong cùng một khu vực mà không bị gò bó.
Khi thiết kế phòng ngủ cho trẻ, cần đặc biệt chú ý đến cửa sổ đón nắng và khả năng lưu thông không khí để đảm bảo môi trường sống trong lành. Nội thất nên ưu tiên thiết kế bo tròn, tránh các góc nhọn và sử dụng các sản phẩm đa công năng nhằm tối ưu diện tích sử dụng. Cách bố trí khoa học sẽ giúp phòng ngủ của trẻ luôn gọn gàng và an toàn.

>>> Xem thêm: 55+ Mẫu thiết kế phòng ngủ cho bé trai đôi hiện đại khoa học
Tiêu chuẩn diện tích phòng ngủ cho người lớn tuổi
Với người lớn tuổi, diện tích phòng ngủ từ 12-20m2 được xem là lý tưởng. Không gian cần đảm bảo sự ấm cúng, an toàn và dễ di chuyển, tránh cảm giác trống trải hoặc quá rộng gây bất tiện khi sinh hoạt.
Bố trí nội thất trong phòng ngủ người cao tuổi nên khoa học, lối đi thông thoáng và hạn chế vật cản. Dù diện tích phòng ngủ không quá lớn, vẫn cần đảm bảo đủ không gian đặt giường, tủ quần áo và một số vật dụng cần thiết mà không gây bí bách hay chật chội. Sự cân đối này giúp nâng cao chất lượng nghỉ ngơi và mang lại cảm giác yên tâm khi sử dụng lâu dài.

Tiêu chuẩn diện tích phòng ngủ theo từng công năng tích hợp
Bên cạnh dựa vào đối tượng sử dụng, công năng tích hợp bên trong phòng ngủ cũng ảnh hưởng trực tiếp đến diện tích cần thiết. Vì vậy, khi tính toán diện tích phòng ngủ theo công năng, gia chủ cần cân nhắc kỹ nhu cầu sử dụng thực tế để đảm bảo sự tiện nghi, thông thoáng và lâu dài.
Diện tích phòng ngủ master tiêu chuẩn
Phòng ngủ master thường là phòng ngủ chính trong nhà, dành cho gia chủ và có diện tích lớn nhất trong tổng thể các phòng ngủ. Không gian này thường được ưu tiên vị trí đẹp, tầm nhìn thoáng và tích hợp thêm nhiều tiện ích như nhà vệ sinh riêng hoặc phòng thay đồ.
Với nhà phố, phòng ngủ master tối thiểu nên từ 20m2 để đảm bảo sự rộng rãi và thoải mái khi bố trí nội thất. Đối với căn hộ cao cấp, biệt thự hoặc villa, diện tích phòng ngủ master có thể dao động từ 30-50m2 tùy theo quy mô công trình. Khoảng diện tích này cho phép gia chủ cá nhân hóa không gian, nâng cao trải nghiệm nghỉ ngơi và thể hiện phong cách sống riêng.

Tiêu chuẩn diện tích phòng ngủ có toilet riêng
Phòng ngủ có toilet riêng mang lại nhiều ưu điểm như tăng tính riêng tư, thuận tiện trong sinh hoạt và nâng cao giá trị thẩm mỹ tổng thể. So với việc sử dụng nhà vệ sinh chung, mô hình này giúp tối ưu trải nghiệm sống, đặc biệt với gia đình nhiều thành viên.
Tuy nhiên, khi thiết kế phòng ngủ có toilet riêng, cần tính toán hợp lý để tránh ảnh hưởng đến sức khỏe và sự thoải mái hằng ngày. Tiêu chuẩn tối thiểu nên từ 16-20m2, trong đó khu vực nhà vệ sinh chiếm khoảng 4-6m2. Việc bố trí khoa học, đảm bảo thông gió và tách biệt hợp lý giữa khu ngủ và khu vệ sinh sẽ giúp không gian luôn sạch sẽ, khô thoáng.

Tiêu chuẩn diện tích phòng ngủ có phòng thay đồ
Phòng ngủ tích hợp phòng thay đồ ngày càng phổ biến nhờ sự tiện lợi và tính thẩm mỹ cao. Không gian này giúp lưu trữ quần áo, phụ kiện gọn gàng, đồng thời tăng sự riêng tư và ngăn nắp cho khu vực nghỉ ngơi.
Để đảm bảo thoáng đãng và không chật chội, diện tích phòng ngủ có phòng thay đồ tối thiểu nên từ 16-20m2. Trong trường hợp tích hợp cả nhà vệ sinh và phòng thay đồ trong cùng một không gian, diện tích hợp lý nên dao động từ 30-50m2. Sự phân chia hợp lý giữa các khu vực chức năng giúp phòng ngủ luôn hài hòa và tiện nghi.

Tổng hợp mẫu thiết kế theo tiêu chuẩn diện tích phòng ngủ phổ biến
Trên thực tế, mỗi mức diện tích sẽ có cách bố trí nội thất và tổ chức không gian phòng ngủ khác nhau. Việc hiểu rõ đặc trưng từng diện tích sẽ giúp gia chủ dễ dàng lựa chọn phương án thiết kế phù hợp với nhu cầu và điều kiện nhà ở. Dưới đây là một số diện tích phòng ngủ phổ biến hiện nay.
Diện tích phòng ngủ 12m2
Đây là mức diện tích thông dụng trong căn hộ chung cư hoặc nhà phố có mặt tiền hẹp. Với phòng ngủ diện tích 12m2, việc bố trí cần đặc biệt khoa học để đảm bảo sự thoải mái và tiện nghi khi sử dụng. Màu sắc và ánh sáng đóng vai trò rất quan trọng trong không gian nhỏ. Nên ưu tiên gam màu sáng, trung tính kết hợp ánh sáng tự nhiên để tạo cảm giác rộng rãi hơn. Nội thất nên tối giản, đa công năng để tối ưu diện tích sử dụng.


>>> Xem thêm: Phương án thiết kế phòng ngủ 12m2 có toilet tối ưu diện tích và đảm bảo thông thoáng.
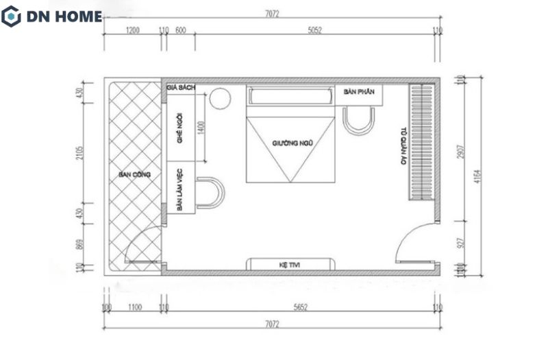
Diện tích phòng ngủ 15m2
Phòng ngủ 15m2 được xem là kích thước trung bình và khá phổ biến hiện nay. Với diện tích này, việc bài trí nội thất trở nên linh hoạt hơn, đáp ứng đầy đủ công năng – tiện nghi – thẩm mỹ. Ngoài giường và tủ quần áo, không gian 15m2 vẫn đủ để tích hợp thêm bàn làm việc nhỏ hoặc thậm chí nhà vệ sinh, phòng thay đồ nếu được thiết kế hợp lý. Đây là mức diện tích cân đối giữa sự rộng rãi và hiệu quả sử dụng diện tích tổng thể của ngôi nhà.


Diện tích phòng ngủ 20m2
Với những căn nhà phố rộng rãi, phòng ngủ 20m2 là lựa chọn hợp lý. Không gian này cho phép bố trí thêm nhiều công năng như phòng thay đồ, nhà vệ sinh riêng, góc thư giãn hoặc làm việc. Sự linh hoạt trong cách sắp xếp giúp gia chủ dễ dàng cá nhân hóa không gian theo phong cách riêng mà vẫn đảm bảo sự thoải mái. Đây cũng là mức diện tích phù hợp cho phòng ngủ master trong nhà phố hiện đại.


Tham khảo: Những phương án thiết kế phòng ngủ 20m2 tối ưu diện tích, giúp không gian trở nên rộng rãi và đầy đủ tiện nghi hơn.
Diện tích phòng ngủ 25m2
25m2 được xem là tiêu chuẩn tối không gian phòng ngủ ưu cho những ngôi nhà có quy mô rộng lớn. Đây là lựa chọn lý tưởng cho phòng ngủ vợ chồng hoặc phòng ngủ master nhờ khả năng tích hợp nhiều công năng. Không gian 25m2 cho phép bố trí giường kích thước lớn, hệ tủ âm tường, bàn trang điểm, sofa thư giãn hoặc khu thay đồ riêng biệt. Ưu điểm nổi bật là sự rộng rãi, sang trọng và dễ dàng tạo điểm nhấn thẩm mỹ.


Diện tích phòng ngủ 30m2
Với biệt thự, dinh thự, căn hộ cao cấp hoặc villa, phòng ngủ 30m2 thường là mức tối thiểu. Ngoài không gian nghỉ ngơi, phòng ngủ còn có thể tích hợp nhiều chức năng khác như khu giải trí, đọc sách, thư giãn, nhà vệ sinh riêng và phòng thay đồ. Diện tích này mang lại sự thoải mái vượt trội và tạo điều kiện để thiết kế không gian theo phong cách cao cấp, cá nhân hóa theo nhu cầu gia chủ.


Có thể thấy, diện tích phòng ngủ hợp lý không chỉ phụ thuộc vào con số m2 cụ thể mà còn dựa trên loại hình nhà ở, đối tượng sử dụng và công năng tích hợp. Từ phòng ngủ 12m2 trong căn hộ nhỏ đến phòng ngủ 30m2 trong biệt thự cao cấp, mỗi mức diện tích đều có cách tổ chức không gian phù hợp để đảm bảo sự tiện nghi, thẩm mỹ và thoải mái khi sử dụng. Việc xác định đúng diện tích phòng ngủ ngay từ giai đoạn thiết kế sẽ giúp tối ưu công năng, tránh lãng phí không gian và nâng cao chất lượng sống lâu dài cho cả gia đình.





