- Default
- Bigger
Trong những năm gần đây, nhà cấp 4 mái bằng 3 phòng ngủ ngày càng được nhiều gia đình Việt lựa chọn nhờ thiết kế gọn gàng, hiện đại và khả năng tối ưu chi phí hiệu quả. Kiểu nhà này không chỉ phù hợp với gia đình từ 3-5 thành viên mà còn dễ dàng ứng dụng ở cả khu vực thành thị lẫn nông thôn. Với sự linh hoạt trong bố trí công năng và phong cách kiến trúc, nhà cấp 4 mái bằng đang trở thành xu hướng nhà ở được quan tâm hàng đầu hiện nay.
Ưu, nhược điểm của nhà cấp 4 mái bằng 3 phòng ngủ
Trước khi quyết định xây dựng, việc nắm rõ ưu, nhược điểm của nhà cấp 4 mái bằng với 3 phòng ngủ sẽ giúp gia chủ có cái nhìn toàn diện hơn. Từ đó, đưa ra phương án thiết kế và thi công phù hợp với nhu cầu thực tế cũng như ngân sách.
Advantage
Nhà cấp 4 mái bằng 3 phòng ngủ sở hữu nhiều lợi thế nổi bật, đặc biệt phù hợp với điều kiện sống và thói quen sinh hoạt của các gia đình Việt hiện đại.
- Cost savings: So với các kiểu nhà cao tầng hoặc nhà mái Thái, mái Nhật, nhà cấp 4 mái bằng có kết cấu đơn giản hơn, thời gian thi công nhanh, từ đó giúp giảm đáng kể chi phí xây dựng và nhân công.
- Đa dạng phong cách thiết kế: Mái bằng dễ kết hợp với nhiều phong cách kiến trúc khác nhau như hiện đại, tối giản, nhà vườn hay phong cách bán cổ điển, giúp gia chủ linh hoạt lựa chọn theo sở thích cá nhân.
- Đáp ứng đầy đủ tiện nghi sinh hoạt: Với cách bố trí hợp lý, nhà cấp 4 mái bằng 3 phòng ngủ vẫn đảm bảo đầy đủ các không gian chức năng như phòng khách, bếp – ăn, phòng ngủ và khu phụ trợ, đáp ứng tốt nhu cầu sinh hoạt của gia đình từ 3-5 người.
- Tối ưu hóa công năng sử dụng: Phần mái bằng có thể tận dụng làm sân thượng để phơi đồ, trồng cây xanh, bố trí khu thư giãn hoặc sân chơi cho trẻ nhỏ,…
- Dễ dàng nâng cấp về sau: Một trong những ưu điểm lớn của nhà cấp 4 mái bằng là khả năng cải tạo, nâng tầng trong tương lai nếu gia đình có nhu cầu mở rộng không gian sống.

Disadvantages
Bên cạnh những ưu điểm nổi bật, nhà cấp 4 mái bằng 3 phòng ngủ cũng tồn tại một số hạn chế mà gia chủ cần cân nhắc kỹ trước khi xây dựng.
- Khả năng chống nóng chưa cao: Mái bằng làm từ bê tông cốt thép có xu hướng hấp thụ nhiệt lớn, nếu không xử lý chống nóng tốt sẽ khiến không gian bên trong nhà trở nên nóng bức vào mùa hè.
- Tuổi thọ mái thấp hơn mái dốc: So với mái Thái hay mái Nhật có độ nghiêng giúp thoát nước mưa nhanh, mái bằng dễ bị đọng nước nếu thi công không chuẩn, từ đó ảnh hưởng đến độ bền lâu dài.
- Thiếu không gian riêng tư: Do toàn bộ công năng được bố trí trên cùng một mặt bằng, các phòng ngủ thường nằm gần nhau, có thể gây hạn chế về sự riêng tư nếu gia đình đông thành viên.
- Dễ tạo cảm giác bí bách: Với những căn nhà có diện tích nhỏ, việc bố trí 3 phòng ngủ cùng nhiều không gian chức năng trên một tầng nếu không khéo léo sẽ khiến nhà cấp 4 trở nên chật chội, thiếu thông thoáng.

Tổng hợp các mẫu nhà cấp 4 mái bằng 3 phòng ngủ được ưa chuộng nhất 2026
Bước sang năm 2026, xu hướng nhà cấp 4 mái bằng với 3 phòng ngủ tiếp tục ghi điểm nhờ thiết kế gọn gàng, hiện đại và khả năng tối ưu chi phí hiệu quả. Dưới đây là những mẫu thiết kế tiêu biểu, được nhiều gia chủ lựa chọn và đánh giá cao trong thời gian gần đây.
Nhà cấp 4 mái bằng 3 phòng ngủ hiện đại
Mẫu nhà mái bằng cấp 4 3 phòng ngủ hiện đại nổi bật với hình khối vuông vức, cấu trúc rõ ràng và các đường nét kiến trúc dứt khoát. Ngoại thất thường sử dụng gam màu trung tính như trắng, xám, be kết hợp cùng vật liệu kính, lam gỗ hoặc ốp đá tạo điểm nhấn tinh tế. Thiết kế mái bằng giúp tổng thể ngôi nhà trông thời thượng hơn, phù hợp với xu hướng kiến trúc hiện đại.


Nhà cấp 4 mái bằng 3 phòng ngủ đơn giản ở nông thôn
Tại khu vực nông thôn, nhà cấp 4 mái bằng được ưa chuộng nhờ phong cách thiết kế đơn giản, gần gũi và chi phí đầu tư hợp lý. Kiến trúc ngoại thất thường hạn chế chi tiết cầu kỳ, ưu tiên mặt tiền thoáng, màu sắc nhẹ nhàng và bố cục hài hòa với cảnh quan xung quanh. Công năng 3 phòng ngủ đáp ứng đủ nhu cầu sử dụng cho gia đình kiểu mẫu – nhiều thế hệ cùng sinh sống tại nông thôn.


>>> Có thể bạn quan tâm: Mẫu xây nhà 2 tầng 300 triệu ở nông thôn với thiết kế hiện đại, bố trí khoa học, giúp tối ưu không gian sống và đảm bảo chi phí đầu tư hợp lý cho gia đình trẻ.
Nhà cấp 4 mái bằng 3 phòng ngủ hình chữ L
Nhà cấp 4 mái bằng chữ L 3 phòng ngủ là mẫu nhà phổ biến tại Việt Nam, lẫn cả nông thôn và thành thị. Kiểu bố cục nhà này cho phép phân tách không gian hợp lý dựa vào 2 cạnh chữ L, giúp phân tách không gian sinh hoạt chung và riêng tư rõ ràng hơn. Phần mái bằng được xử lý phẳng, kết hợp màu sơn sáng giúp tổng thể ngôi nhà trông rộng rãi và hiện đại hơn. Ngoài ra, để tạo điểm nhấn thẩm ngoại thất, đường nét uốn lượn bo tròn là gợi ý đáng tham khảo.


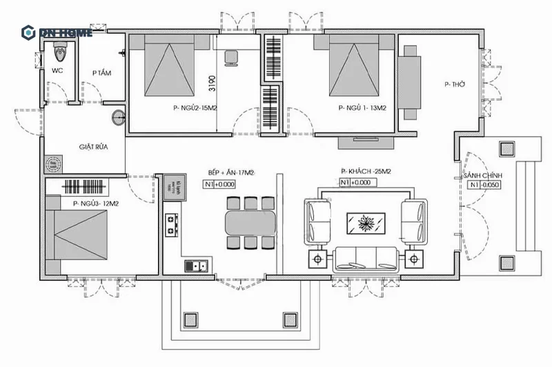
Nhà cấp 4 mái bằng 3 phòng ngủ 1 phòng thờ
Với những gia đình coi trọng yếu tố truyền thống, nhà cấp 4 mái bằng 1 phòng thờ và 3 phòng ngủ là lựa chọn lý tưởng. Ngoại thất vẫn giữ phong cách hiện đại, gọn gàng với dáng mái bằng. Về công năng, có thêm phòng phòng thờ được đặt ở vị trí trang trọng và yên tĩnh. Cách thiết kế này vừa đảm bảo tính thẩm mỹ, vừa đáp ứng nhu cầu sinh hoạt văn hóa của gia đình nhiều thế hệ.


Nhà cấp 4 mái bằng 3 phòng ngủ có gác lửng
Nhà cấp 4 mái bằng 3 có gác lửng là giải pháp thông minh cho những khu đất có diện tích hạn chế. Nhờ thiết kế gác lửng, cấu trúc ngôi nhà trông cao ráo và thoáng đãng hơn, tạo điểm nhấn cho ngoại thất. Công năng bên trong nhờ có gác lửng cũng giúp phân bố 3 phòng ngủ hợp lý, riêng tư và có thêm không gian sinh hoạt chung ở tầng trệt.


>>> Xem thêm: Mẫu nhà cấp 4 đẹp 5×20 có gác lửng với phong cách hiện đại, không gian mở và gác lửng rộng rãi giúp tăng diện tích sử dụng, phù hợp cho gia đình từ 3–5 thành viên sinh sống thoải mái.
Nhà cấp 4 mái bằng 3 phòng ngủ có gara
Đối với các gia đình sở hữu ô tô, mẫu nhà cấp 4 mái bằng có gara và 3 phòng ngủ sẽ là lựa chọn hoàn hảo, tiện nghi trong sinh hoạt hằng ngày. Thông thường khoảng đất phía trước ngôi nhà sẽ được tận dụng, hoặc tối ưu hơn là thế đất chữ L để tận dụng góc khuyết để làm gara. Phần không gian còn lại cần được tính toán kỹ lưỡng để đảm bảo bố trí đủ 3 phòng ngủ những vẫn thuận tiện sinh hoạt chung.


Nhà cấp 4 mái bằng 3 phòng ngủ có sân thượng
Mẫu nhà cấp 4 có sân thượng tận dụng tối đa lợi thế của mái bằng, mang đến thêm không gian sinh hoạt ngoài trời cho gia đình. Phần sân thượng có thể dùng làm khu trồng cây, phơi đồ hoặc góc thư giãn,… giúp ngôi nhà trở nên thoáng đãng hơn. Kiến trúc ngoại thất nhờ đó cũng có điểm nhấn và trở nên thu hút hơn. Trong khi đó mặt bằng công năng tầng 1 vẫn đáp ứng đầy đủ các khu vực chức năng cơ bản như: phòng khách, bếp ăn, nhà vệ sinh và 3 phòng ngủ.


Nhà cấp 4 mái bằng 3 phòng ngủ có sân vườn
Nhà cấp 4 mái bằng có sân vườn là lựa chọn lý tưởng cho những gia đình yêu thích không gian sống gần gũi thiên nhiên. Ngoại thất thường sử dụng gam màu trung tính nhẹ nhàng để hài hòa với quang cảnh sân vườn, tạo cảm giác gần gũi với thiên nhiên và thoáng mát, dễ chịu. Bên trong, công năng được bố trí khoa học cùng với 3 phòng ngủ, phù hợp cho gia đình từ 3-5 thành viên, vừa đảm bảo tiện nghi vừa nâng cao chất lượng cuộc sống.


>>> Khám phá thêm: Mẫu nhà cấp 4 chữ l 3 phòng ngủ đang được ưa chuộng nhờ bố cục khoa học và không gian sống thoáng đãng.
Chi phí xây dựng nhà cấp 4 mái bằng 3 phòng ngủ
Chi phí xây dựng nhà cấp 4 mái bằng có 3 phòng ngủ là vấn đề được rất nhiều gia chủ quan tâm. Trên thực tế, mức đầu tư sẽ phụ thuộc vào nhiều yếu tố như diện tích xây dựng, phong cách thiết kế, vật liệu hoàn thiện và đơn giá nhân công tại từng thời điểm. Dưới đây là bảng giá tham khảo giúp bạn chủ động chuẩn bị ngân sách tốt hơn.
| Gói xây dựng nhà | Chi phí (VNĐ/m2) | Các hạng mục chi tiết |
| Rough construction | 3,600,000 | – Thi công khung, móng, kết cấu
– Chủ nhà tự do hoàn thiện nội thất theo sở thích |
| Xây dựng trọn gói | 5.800.000 | – Thi công khung, móng, kết cấu và hoàn thiện cơ bản
– Đảm bảo công năng + tiện nghi, tối ưu chi phí |
| Chìa khóa trao tay | 6.500.000 | – Thi công khung, móng, kết cấu và hoàn thiện + nội thất đầy đủ
– Bàn giao hoàn chỉnh, không lo phát sinh chi phí |
Note:
- Chi phí có thể thay đổi tùy theo diện tích xây dựng thực tế và mức độ hoàn thiện của công trình.
- Vật liệu xây dựng (phần thô và hoàn thiện) ảnh hưởng trực tiếp đến tổng ngân sách đầu tư.
- Thời điểm thi công và giá nhân công tại địa phương cũng là yếu tố quan trọng cần cân nhắc để tối ưu chi phí.
- Gia chủ nên dự trù thêm 10–15% ngân sách để chủ động xử lý các khoản phát sinh trong quá trình thi công.
Lưu ý khi xây dựng nhà cấp 4 mái bằng 3 phòng ngủ
Để sở hữu ngôi nhà cấp 4 mái bằng có 3 phòng ngủ đẹp, bền vững và phù hợp với ngân sách, gia chủ không chỉ cần quan tâm đến thiết kế mà còn phải chú trọng đến nhiều yếu tố quan trọng trong suốt quá trình xây dựng. Cụ thể:
Hoàn thiện bản vẽ kế hoạch chi tiết
Bản vẽ thiết kế là nền tảng quan trọng quyết định chất lượng và hiệu quả thi công nhà cấp 4 mái bằng 3 phòng ngủ. Một bộ hồ sơ đầy đủ cần thể hiện rõ phương án kết cấu, bố trí công năng, giải pháp kỹ thuật và định hướng thẩm mỹ theo yêu cầu của chủ đầu tư. Việc hoàn thiện chi tiết bản vẽ ngay từ đầu giúp hạn chế tối đa tình trạng thay đổi giữa chừng – nguyên nhân chính dẫn đến chậm tiến độ và đội chi phí xây dựng.

Tính toán, dự trù quỹ thời gian và tài chính cẩn thận
Lập kế hoạch chi tiết về ngân sách và thời gian là yếu tố then chốt để quá trình xây dựng diễn ra suôn sẻ. Vì vậy trước khi bắt tay triển khai dự án xây nhà, gia chủ nên phân bổ ngân sách rõ ràng cho từng hạng mục, đồng thời dự trù quỹ thời gian hợp lý từ giai đoạn chuẩn bị đến khi hoàn thiện. Cách làm này giúp kiểm soát tốt tiến độ và tránh bị động trước các tình huống phát sinh.
Lựa chọn hướng nhà phù hợp
Hướng nhà không chỉ ảnh hưởng đến phong thủy mà còn tác động trực tiếp đến sinh hoạt hằng ngày của gia đình. Khi xây dựng nhà cấp 4 mái bằng 3 phòng ngủ, gia chủ nên cân nhắc lựa chọn hướng nhà vừa hợp mệnh, vừa phù hợp với thói quen sinh hoạt như đón nắng buổi sáng, tránh nắng gắt buổi chiều. Điều này giúp không gian sống luôn thông thoáng, dễ chịu và tiết kiệm năng lượng.

Bố trí các phòng chức năng hợp lý
Nhà cấp 4 mái bằng với 3 phòng ngủ thường phục vụ gia đình đông thành viên, vì vậy việc bố trí công năng khoa học là vô cùng cần thiết. Không gian sinh hoạt chung cần đủ rộng và thoải mái để gắn kết các thành viên, trong khi khu vực phòng ngủ vẫn đảm bảo sự riêng tư cần thiết. Ngoài ra, tận dụng tốt ánh sáng tự nhiên và thông gió sẽ giúp ngôi nhà luôn thoáng mát, tránh cảm giác bí bách.
Lựa chọn phong cách kiến trúc phù hợp
Nhà cấp 4 mái bằng có thể linh hoạt thiết kế theo nhiều phong cách khác nhau như: hiện đại, tối giản, tân cổ điển, sang trọng hay gần gũi thiên nhiên,… Tuy nhiên, để lựa chọn phong cách phù hợp, gia chủ cần cân nhắc diện tích khu đất, cảnh quan xung quanh, ngân sách đầu tư và đặc biệt là thói quen sinh hoạt của cả gia đình. Phong cách phù hợp sẽ giúp ngôi nhà bền đẹp theo thời gian và đảm bảo trải nghiệm sống thoải mái lâu dài.

Lựa chọn vật liệu hoàn thiện phù hợp
Vật liệu hoàn thiện ảnh hưởng trực tiếp đến tính thẩm mỹ, độ bền và chi phí của nhà cấp 4 mái bằng 3 phòng ngủ. Gia chủ nên dựa trên ngân sách tổng thể để lựa chọn vật liệu hợp lý. Hiện nay, nhiều loại vật liệu phổ thông vẫn đáp ứng tốt tiêu chí bền đẹp, giúp tối ưu chi phí mà không cần sử dụng vật liệu quá cao cấp. Ngược lại, đừng vì tiết kiệm ngân sách ban đầu mà chọn vật liệu giá rẻ kém chất lượng, vì sẽ gây tốn kém chi phí và thời gian hơn cho việc sửa chữa về sau.
Chú trọng phong thủy
Phong thủy là yếu tố được nhiều gia đình Việt đặc biệt quan tâm khi xây dựng nhà ở. Vì vậy, khi xây nhà, việc chú ý đến các yếu tố như: màu sắc, hướng nhà, cách bố trí nội thất và lựa chọn vật liệu hợp phong thủy được cho là giúp tăng vượng khí, mang lại sự an tâm và may mắn cho gia đình. Ông bà ta vẫn thường nói “có thờ có thiêng, có kiêng có lành”, vì vậy việc cân nhắc yếu tố phong thủy là điều không nên bỏ qua.

Lựa chọn đơn vị thi công uy tín
Đơn vị thiết kế – thi công đóng vai trò quyết định đến chất lượng và sự thành công của công trình nhà cấp 4 mái bằng 3 phòng ngủ. Đơn vị uy tín sẽ đảm bảo cân bằng hài hòa giữa thẩm mỹ, công năng và ngân sách, đồng thời đáp ứng tốt các yêu cầu cá nhân hóa theo thói quen sinh hoạt của gia đình.
DN HOME – Đơn vị thiết kế, thi công nhà đẹp, uy tín
DN Home là đơn vị uy tín với hơn 10 năm kinh nghiệm trong lĩnh vực thiết kế và thi công nhà ở trọn gói, đặc biệt là các công trình nhà cấp 4 mái bằng 3 phòng ngủ hiện đại, tối ưu công năng và chi phí. Với hàng trăm dự án nhà ở đã thực hiện thành công, Điểm Nhấn tự hào mang đến giải pháp nhà ở phù hợp với nhu cầu thực tế của từng gia đình.

- Đội ngũ kiến trúc sư – kỹ sư được đào tạo bài bản, am hiểu sâu về thiết kế nhà ở và giàu kinh nghiệm thực tiễn.
- Tư vấn giải pháp thiết kế – thi công không gian sống tối ưu theo ngân sách và nhu cầu sử dụng
- Quy trình làm việc khoa học và chuyên nghiệp, cam kết đúng tiến độ và giúp khách hàng tiết kiệm thời gian.
- Sở hữu xưởng sản nội thất riêng, chủ động kiểm soát chất lượng nhờ đảm bảo vật liệu rõ nguồn gốc và đồng bộ trong thiết kế – thi công.
- Chính sách bảo hành minh bạch, hậu mãi rõ ràng giúp khách hàng an tâm về độ bền vững của công trình.
Không chỉ dừng lại ở việc thiết kế đẹp, DN Home còn chú trọng đến yếu tố công năng, phong thủy và trải nghiệm sống lâu dài cho gia chủ. Mỗi dự án không gian sống đều được nghiên cứu kỹ lưỡng để đảm bảo sự tiện nghi, thông thoáng và phù hợp với phong cách sống

Nếu bạn đang tìm kiếm một đơn vị thiết kế – thi công nhà cấp 4 mái bằng 3 phòng ngủ chuyên nghiệp, uy tín và tối ưu chi phí, DN Home chính là lựa chọn đáng tin cậy. Liên hệ ngay hotline 1800 9398 để được tư vấn chi tiết và nhận báo giá chính xác nhất cho ngôi nhà của bạn.
Nhìn chung, nhà cấp 4 mái bằng 3 phòng ngủ là lựa chọn lý tưởng cho nhiều gia đình Việt nhờ thiết kế hiện đại, công năng tiện nghi và khả năng tối ưu chi phí hiệu quả. Hy vọng với những chia sẻ từ việc đánh giá ưu – nhược điểm, tham khảo các mẫu nhà được ưa chuộng, cho đến tính toán chi phí và lưu ý khi xây dựng trong bài viết trên, DN Home đã giúp bạn có thêm kinh nghiệm trong hành trình kiến tạo nên không gian sống lý tưởng.
Articles on the same topic
- The secret to renovating a level 4 house into a beautiful and economical 2-storey house
- 35+ Các nhà cấp 4 2 phòng ngủ 1 phòng thờ chuẩn phong thuỷ
- 99+ Mẫu nhà cấp 4 4 phòng ngủ 150m2 đẹp, tối ưu chi phí
- 55+ Mẫu nhà cấp 4 1 phòng ngủ tiện nghi, đa năng năm 2024
- Dự toán chi phí xây nhà cấp 4 150m2 mới nhất 2024
- 1001+ Mẫu thiết kế nhà cấp 4 5×10 có 2 phòng ngủ ĐẸP nhất
- Chi phí xây nhà cấp 4 50m2 có gác lửng 2024 là bao nhiêu?
- TOP 45+ Mẫu nhà cấp 4 80m2 3 phòng ngủ chi phí thấp
- 55+ mẫu nhà cấp 4 chữ L 4 phòng ngủ đẹp SIÊU tiết kiệm
- 35+ Mẫu nhà cấp 4 3 phòng ngủ 5×20 đẹp, ấn tượng nhất





