- Default
- Bigger
Phòng ngủ 10m2 là diện tích khá phổ biến trong các căn hộ, nhà phố hiện nay. Dù không quá rộng, nhưng nếu biết cách thiết kế và sắp xếp nội thất hợp lý, không gian này hoàn toàn có thể trở thành nơi nghỉ ngơi đầy tiện nghi, thoải mái và mang đậm dấu ấn cá nhân. Dưới đây là tổng hợp các mẫu thiết kế phòng ngủ nhỏ 10m2 đẹp, ấn tượng mà DN HOME có tổng hợp và muốn gửi đến bạn.
Tầm quan trọng của việc thiết kế phòng ngủ nhỏ 10m2
Với những không gian có diện tích hạn chế, việc thiết kế phòng ngủ 10m2 không chỉ đơn thuần là sắp xếp nội thất khoa học mà còn là bài toán cân bằng giữa công năng, thẩm mỹ và sự thoải mái. Dưới đây là tầm quan trọng của việc thiết kế phòng ngủ 10m2 mà bạn có thể tham khảo thêm:
- Tối ưu diện tích và công năng sử dụng: Phòng ngủ không chỉ đơn thuần là nơi để nghỉ ngơi mà còn là không gian riêng tư giúp gia chủ thư giãn, tái tạo năng lượng sau một ngày dài. Với diện tích 10m2, nếu biết cách bố trí nội thất hợp lý, không gian phòng ngủ sẽ trở nên thoải mái.
- Gia tăng tính thẩm mỹ, tạo cảm giác thoải mái: Thiết kế nội thất phòng ngủ 10m2 một cách khoa học góp phần nâng cao tính thẩm mỹ cho toàn bộ không gian. Không gian được sắp xếp hợp lý không chỉ mang lại cảm giác thoải mái mà còn thể hiện được lối sống và cá tính riêng.
- Giúp tiết kiệm chi phí, thời gian và công sức: Thiết kế phòng ngủ nhỏ 10m2 theo hướng đơn giản giúp gia chủ hạn chế việc mua sắm đồ nội thất không cần thiết. Việc sử dụng nội thất đa năng, thiết kế tối giản không chỉ tiết kiệm chi phí mà còn giảm thời gian thi công, công sức bố trí.

Bạn có nhu cầu tư vấn bedroom interior design then contact 1800 9398 or leave contact information!
Những phương án bố trí nội thất phòng ngủ 10m2 thẩm mỹ, khoa học
Để không gian phòng ngủ nhỏ 10m2 vừa đảm bảo tính thẩm mỹ, vừa thuận tiện trong sinh hoạt, việc lựa chọn phương án bố trí nội thất phù hợp là điều rất quan trọng. Dưới đây là một số phương án bố trí nội thất khoa học cho phòng ngủ mà bạn có thể tham khảo.
Phương án 1: Sắp xếp phòng ngủ nhỏ 10m2 gọn gàng, đầy đủ nội thất
Với diện tích hạn chế, việc ưu tiên các món đồ nội thất thông minh, đa năng sẽ giúp các mẫu thiết kế phòng ngủ nhỏ 10m2 thêm phần tiện nghi mà vẫn giữ được sự thông thoáng. Gia chủ có thể lựa chọn giường ngủ tích hợp hộc tủ, tủ quần áo âm tường hoặc kệ treo tường để tận dụng tối đa không gian theo chiều cao. Cách bố trí này giúp căn phòng đáp ứng đầy đủ các nhu cầu sinh hoạt cần thiết, đồng thời hạn chế cảm giác chật chội, rối mắt.


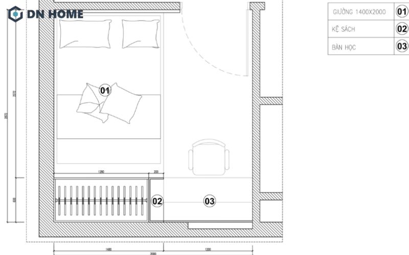
Phương án 2: Thiết kế phòng ngủ 10m2 theo chiều dọc
Thiết kế phòng ngủ 10m2 theo chiều dọc là giải pháp phù hợp với những không gian sống có chiều ngang hạn chế. Theo cách bố trí này, các món đồ nội thất như giường ngủ, tủ quần áo và bàn làm việc được sắp xếp dọc theo một bên tường, giúp tạo chiều sâu cho căn phòng. Việc bố trí nội thất áp sát tường không chỉ tối ưu diện tích mà còn giúp không gian di chuyển trở nên thông thoáng, mang lại cảm giác rộng rãi hơn cho phòng ngủ nhỏ.


Phương án 3: Thiết kế phòng ngủ nhỏ 10m2 tối giản
Phong cách tối giản là lựa chọn lý tưởng giúp phòng ngủ 10m2 trở nên gọn gàng hơn về mặt thị giác. Tối giản không đồng nghĩa với việc thiếu tiện nghi, mà là tập trung vào những món đồ nội thất cơ bản, phục vụ tốt cho sinh hoạt hằng ngày. Gia chủ nên ưu tiên sử dụng giường ngủ thấp, tủ quần áo âm tường và hạn chế các chi tiết trang trí rườm rà để không gian luôn thoáng, dễ chịu.


Phương án 4: Thiết kế phòng ngủ 10m2 kết hợp ban công
Với những phòng ngủ 10m2 có ban công, việc tận dụng nguồn ánh sáng tự nhiên là yếu tố rất quan trọng. Gia chủ có thể đặt giường ngủ gần khu vực ban công để không gian luôn sáng sủa và thoáng đãng hơn. Bên cạnh đó, tủ quần áo nên thiết kế cao sát trần nhằm tiết kiệm diện tích sàn, kết hợp với bàn học hoặc bàn làm việc nhỏ gọn, có thể gấp gọn khi không sử dụng, giúp căn phòng dù nhỏ nhưng vẫn tiện nghi và không bị bí bách.


Phương án 5: Bố trí phòng ngủ 10m2 có toilet
Đối với những mẫu thiết kế phòng ngủ nhỏ 10m2 tích hợp toilet, việc bố trí nội thất cần được tính toán kỹ lưỡng nhằm đảm bảo sự tiện nghi và thông thoáng cho không gian sống. Giường ngủ nên đặt sát tường, ưu tiên các mẫu giường có hộc tủ để tăng khả năng lưu trữ đồ dùng cá nhân. Bàn làm việc hoặc bàn trang điểm có thể bố trí ở khu vực cuối giường nhằm thuận tiện cho sinh hoạt.


Phương án 6: Ứng dụng tủ âm tường trong thiết kế phòng ngủ nhỏ 10m2
Tủ âm tường là giải pháp được nhiều gia chủ ưu tiên khi thiết kế phòng ngủ nhỏ 10m2. Nhờ được thiết kế chìm vào tường, tủ quần áo không chiếm nhiều diện tích sử dụng, giúp không gian phòng ngủ rộng rãi và gọn gàng hơn. Bên cạnh khả năng lưu trữ, tủ âm tường còn có thể thiết kế liền với giường ngủ, mang lại cảm giác liền mạch và tiện nghi cho không gian nhỏ.


30+ Mẫu thiết kế phòng ngủ 10m2 siêu đẹp, siêu tiện nghi
Mỗi một mẫu thiết kế phòng ngủ nhỏ 10m2 đều có những nét độc đáo và thẩm mỹ riêng. Tùy vào nhu cầu và sở thích cá nhân, bạn có thể chọn cho mình một trong những mẫu thiết kế sau:
Thiết kế phòng ngủ 10m2 cho người độc thân
Phòng ngủ 10m2 dành cho người độc thân thường hướng đến sự gọn gàng, linh hoạt và tiện lợi trong sinh hoạt hằng ngày. Thiết kế ưu tiên các món nội thất đơn giản như giường đơn, tủ quần áo cửa lùa, kệ treo tường hoặc bàn làm việc gấp gọn nhằm tiết kiệm diện tích. Ngoài ra, việc bố trí thêm một góc nhỏ gần cửa sổ để thư giãn hoặc đọc sách sẽ giúp không gian trở nên thoải mái và mang đậm dấu ấn cá nhân.


Thiết kế phòng ngủ nhỏ 10m2 cho vợ chồng
Với phòng ngủ 10m2 dành cho vợ chồng, gia chủ nên lựa chọn giường đôi có kích thước phù hợp, kết hợp hộc tủ hoặc tab đầu giường để tăng không gian lưu trữ. Bàn trang điểm và các chi tiết nội thất có thể bố trí gọn gàng hai bên giường, ưu tiên thiết kế treo tường nhằm tiết kiệm diện tích. Bên cạnh đó, các gam màu trung tính như trắng, be hoặc xám nhạt sẽ giúp phòng ngủ trông nhẹ nhàng, thoáng đãng và dễ chịu hơn.


>>> Tìm hiểu thêm:20m2 bedroom design for couples – Xu hướng thiết kế mới nhất 2026 cho tổ ấm hạnh phúc.
Thiết kế phòng ngủ nhỏ 10m2 cho bé
Đối với trẻ nhỏ, phòng ngủ không chỉ là nơi nghỉ ngơi mà còn là không gian để học tập và vui chơi mỗi ngày. Vì vậy, khi thiết kế phòng ngủ 10m2 cho bé, bạn cần ưu tiên các giải pháp bố trí nội thất đa năng nhằm tối ưu diện tích sử dụng. Giường tầng hoặc giường đơn kết hợp tủ quần áo âm tường và bàn học treo tường là lựa chọn phổ biến, giúp phòng ngủ luôn gọn gàng, thông thoáng và thuận tiện cho các sinh hoạt hằng ngày của bé.


Thiết kế phòng ngủ 10m2 với giường ngủ dạng bục
Giường ngủ dạng bục là giải pháp thông minh cho những phòng ngủ nhỏ 10m2 cần tối ưu không gian. Mẫu giường này thường được thiết kế liền kề với tủ quần áo hoặc bàn làm việc, tạo nên tổng thể hài hòa và liền mạch cho căn phòng. Phần bục giường được tích hợp thêm hộc tủ lưu trữ bên dưới, giúp bạn lưu trữ đồ cá nhân, từ đó hạn chế cảm giác chật chội và mang lại sự gọn gàng cho không gian sống.


Thiết kế phòng ngủ nhỏ 10m2 có nhà vệ sinh
Thiết kế phòng ngủ 10m2 có nhà vệ sinh đòi hỏi sự tính toán kỹ lưỡng về cách bày trí nội thất, đảm bảo không gian luôn thông thoáng. Giường ngủ nên được đặt tách biệt với khu vực nhà vệ sinh nhằm hạn chế tình trạng ẩm mốc, đảm bảo sự riêng tư khi sử dụng. Nhà vệ sinh cần được thiết kế với diện tích vừa phải, kết hợp các món nội thất âm tường như tủ quần áo hoặc kệ lưu trữ,… giúp phòng ngủ nhỏ thêm phần gọn gàng, mang đến sự thoải mái cho gia chủ.


>>> Xem thêm: Thiết kế phòng ngủ 12m2 có toilet – Bí quyết bố trí nội thất thông minh cho không gian nhỏ hẹp.
Nhưng lưu ý cần biết khi thiết kế phòng ngủ nhỏ 10m2
Để phòng ngủ 10m2 vừa đảm bảo thẩm mỹ, vừa đáp ứng tốt nhu cầu sinh hoạt hằng ngày, gia chủ cần lưu ý một số yếu tố quan trọng trong quá trình thiết kế và bố trí nội thất như:
Unified design style
Việc lựa chọn phong cách phù hợp với diện tích phòng ngủ 10m2 và sở thích của gia chủ sẽ giúp không gian trở nên hài hòa và dễ chịu hơn. Khi phong cách thiết kế được thống nhất từ màu sắc, chất liệu đến kiểu dáng nội thất, căn phòng sẽ tránh được cảm giác rối mắt, đồng thời tạo sự thoải mái và tăng cảm hứng nghỉ ngơi, làm việc.

Ưu tiên sử dụng các món nội thất đa năng, thông minh
Những món nội thất đa năng, thiết kế nhỏ gọn sẽ giúp tối ưu diện tích và mang lại sự ngăn nắp cho các mẫu thiết kế phòng ngủ nhỏ 10m2. Gia chủ nên ưu tiên các sản phẩm như giường ngủ có hộc kéo, bàn làm việc tích hợp kệ hoặc tủ quần áo âm tường để tiết kiệm không gian. Bên cạnh đó, việc lựa chọn nội thất có kích thước vừa phải, phù hợp với diện tích phòng sẽ giúp hạn chế cảm giác chật chội.
Bố trí nội thất hợp lý, khoa học
Cách sắp xếp nội thất đóng vai trò quan trọng trong việc tạo cảm giác rộng rãi cho phòng ngủ 10m2. Khi bố trí nội thất, bạn cần tránh đặt đồ đạc rời rạc hoặc tạo ra các góc chết trong không gian. Giường ngủ nên ưu tiên đặt gần cửa sổ để đón ánh sáng tự nhiên, tủ quần áo bố trí ở cuối giường hoặc thiết kế âm tường, trong khi bàn làm việc hay bàn trang điểm có thể đặt ở đầu giường để thuận tiện cho sinh hoạt hằng ngày.

Chọn kiểu giường phù hợp với phòng ngủ 10m2
Giường ngủ là đồ nội thất chiếm diện tích lớn trong phòng, vì vậy cần được lựa chọn kỹ lưỡng về kích thước, kiểu dáng. Với các mẫu thiết kế phòng ngủ nhỏ 10m2, gia chủ nên ưu tiên các mẫu giường thấp, kiểu dáng đơn giản và tích hợp thêm ngăn kéo để tăng khả năng lưu trữ. Ngoài ra, việc đặt giường sát tường hoặc vuông góc với cửa ra vào không chỉ giúp tiết kiệm diện tích mà còn mang lại cảm giác an toàn, hợp phong thủy phòng.
Lựa chọn màu sắc và bố trí ánh sáng hài hoà
Màu sắc và ánh sáng là hai yếu tố quan trọng không thể thiếu trong thiết kế phòng ngủ 10m2. Gia chủ nên ưu tiên các gam màu sáng, trung tính như trắng, be hoặc kem để giúp không gian trông rộng rãi và thông thoáng hơn. Bên cạnh đó, việc bố trí ánh sáng hợp lý, kết hợp hài hòa giữa ánh sáng tự nhiên và hệ đèn chiếu sáng dịu nhẹ sẽ mang lại cảm giác dễ chịu, đồng thời giúp phòng ngủ trở nên ấm cúng và thư giãn hơn.

Trang trí phòng ngủ 10m2 vừa đủ, tránh rườm rà
Đồ trang trí là yếu tố giúp phòng ngủ 10m2 thêm sinh động và có điểm nhấn, tuy nhiên cần lựa chọn với số lượng vừa phải. Những món đồ đơn giản như tranh treo tường, đèn ngủ hoặc một vài chậu cây nhỏ sẽ giúp không gian trở nên tinh tế hơn mà không gây cảm giác chật chội. Việc tiết chế các chi tiết trang trí rườm rà sẽ giúp phòng ngủ nhỏ luôn gọn gàng và thông thoáng.
Bố trí phòng ngủ 10m2 theo phong thuỷ
Khi thiết kế phòng ngủ nhỏ 10m2, gia chủ cũng nên chú trọng đến yếu tố phong thủy để mang lại cảm giác an tâm và giấc ngủ ngon. Giường ngủ nên tránh đặt trực diện với cửa ra vào hoặc cửa sổ để hạn chế thất thoát năng lượng. Bên cạnh đó, không nên bố trí giường quá gần khu vực nhà vệ sinh để đảm bảo sự yên tĩnh, sạch sẽ và giữ phong thủy tốt cho không gian phòng ngủ.

DN HOME – Đơn vị thiết kế nội thất phòng ngủ 10m2 uy tín
DN HOME tự hào là đơn vị thiết kế nội thất phòng ngủ 10m2 uy tín, được nhiều khách hàng tin tưởng và lựa chọn. Với đội ngũ kiến trúc sư và kỹ sư có hơn 10 năm kinh nghiệm trong ngành, mỗi mẫu thiết kế phòng ngủ nhỏ 10m2 đều được nghiên cứu kỹ về công năng, thẩm mỹ và phong cách.
Bên cạnh năng lực thiết kế, DN HOME còn có xưởng sản xuất nội thất quy mô lớn hơn 2000m2, giúp chủ động trong khâu gia công, kiểm soát chất lượng và tiến độ thi công. Đặc biệt, DN HOME luôn đặt quyền lợi của khách hàng lên hàng đầu với chính sách bảo hành rõ ràng, dài hạn, mang đến sự yên tâm trong suốt quá trình sử dụng dịch vụ.
Nếu bạn đang muốn được tư vấn thêm về quy trình thiết kế, thi công cũng như các mẫu thiết kế phòng ngủ phù hợp với cá nhân thì đừng ngần ngại mà hãy liên hệ DN HOME ngay qua 1800 9398 để được hỗ trợ nhanh chóng và chi tiết.

Trên đây là những gợi ý về các mẫu thiết kế phòng ngủ nhỏ 10m2 đẹp, hiện đại mà DN HOME muốn gửi đến bạn. Hy vọng những chia sẻ này sẽ giúp bạn dễ dàng hình dung và lựa chọn cho mình một mẫu thiết kế phù hợp, tạo nên không gian nghỉ ngơi tiện nghi, thoải mái và đáp ứng tốt nhu cầu sinh hoạt hằng ngày.
See also:
- Bedroom decoration for couples cần lưu ý những điều gì?





