Tổng hợp bản vẽ thiết kế quán cafe đẹp, hợp xu hướng 2026

Cập Nhật 19/03/2026
Nội Thất Điểm Nhấn
Interior Highlights

Nội Thất Điểm Nhấn tự hào với kinh nghiệm dày dặn trong thiết kế – thi công nội thất, cam kết mang đến giá trị vượt trội, kiến tạo không gian sống hiện đại, tiện nghi và đẳng cấp cho bạn. Các thành tích đạt được:

  • Thương Hiệu Xuất Sắc Châu Á 2023
  • Chứng nhận hệ thống quản lý môi trường SO 14001:2015
  • Chứng nhận đạt hệ thống an toàn và sức khỏe nghề nghiệp 45001:2018

messenger YÊU CẦU TƯ VẤN
Font size
  • Default
  • Bigger

Sai lầm trong cách bố trí quán cafe khiến quầy bar trở nên bất tiện, khu vực khách ngồi kém thoải mái thường bắt nguồn từ việc thiếu bản vẽ thiết kế chuyên nghiệp. Để tối ưu hiệu quả vận hành kinh doanh, việc đầu tư vào bản vẽ công năng là bước không thể bỏ qua. Hãy cùng Nội Thất Điểm Nhấn khám phá vai trò và tham khảo các bản vẽ thiết kế quán cafe đẹp, tiện nghi trong bài viết dưới đây.

Các loại bản vẽ thiết kế quán cafe

Bản vẽ công năng quán cafe là nơi trình bày ý tưởng về không gian tương lai, bao gồm các loại như bản vẽ ME, kiến trúc, kết cấu và nội thất. Mỗi loại bản vẽ đều đảm nhiệm những vai trò khác nhau, giúp quá trình thi công trở nên dễ dàng hơn. 

Bản vẽ kiến trúc

Bản vẽ kiến trúc là bước khởi đầu để định hình diện mạo và phân bổ tổng thể không gian quán cafe. Cụ thể, kiến trúc sư sẽ xác định vị trí chính xác của cửa ra vào, khu vực phục vụ và nhà vệ sinh sao cho khoảng cách việc di chuyển trở nên thuận tiện. Đồng thời, các số đo về chiều cao trần và kích thước cửa được tối ưu để tận dụng tối đa ánh sáng tự nhiên, tạo nên sự thông thoáng và cuốn hút ngay từ mặt tiền.

Bản vẽ kiến trúc là phần thể hiện tổng thể, cung cấp cái nhìn chi tiết về không gian quán cafe
Bản vẽ kiến trúc là phần thể hiện tổng thể, cung cấp cái nhìn chi tiết về không gian quán cafe

Bản vẽ kết cấu

Bản vẽ thiết kế quán cafe phần kết cấu đóng vai trò là bộ khung chịu lực nhằm đảm bảo sự chắc chắn và an toàn cho toàn bộ công trình. Tại đây, các thông số kỹ thuật về sắt thép và bê tông cho hệ thống móng, cột, sàn đều được tính toán chi tiết. Điều này đặc biệt cần thiết đối với những quán cafe có tầng lầu, gác lửng hoặc lắp đặt hệ thống máy móc pha chế có trọng lượng lớn. Việc tuân thủ bản vẽ kết cấu giúp chủ quán duy trì độ bền vững cho quán trong suốt quá trình kinh doanh.

Bản vẽ kết cấu tập trung vào phần chi tiết bên trong như hệ móng, cột, dầm, sàn và các hạng mục chịu lực chính của công trình quán cafe
Bản vẽ kết cấu tập trung vào phần chi tiết bên trong như hệ móng, cột, dầm, sàn và các hạng mục chịu lực chính của công trình quán cafe

Bản vẽ nội thất

Bản vẽ thiết kế quán cafe phần nội thất thể hiện chi tiết cách bố trí không gian theo từng khu vực chức năng. Thông qua các thông số cụ thể về vị trí và kích thước của từng món nội thất, chủ đầu tư có thể hình dung rõ ràng diện mạo thực tế sau khi hoàn thiện. Bản vẽ này không chỉ đảm bảo tính thẩm mỹ đồng nhất mà còn giúp tối ưu hóa công năng sử dụng, giúp khu vực pha chế thuận tiện cho nhân viên và không gian ngồi luôn thoải mái cho khách hàng.

Bản vẽ thiết kế quán cafe phần nội thất trình bày chi tiết màu sắc, phong cách chủ đạo của không gian
Bản vẽ thiết kế quán cafe phần nội thất trình bày chi tiết màu sắc, phong cách chủ đạo của không gian

Bản vẽ ME

Bản vẽ ME thể hiện chi tiết các hệ thống kỹ thuật cốt lõi bao gồm điện, nước, chiếu sáng và thông gió. Thông qua sơ đồ này, đơn vị thi công có thể nắm rõ vị trí lắp đặt cũng như đường đi của mạng lưới điện và hệ thống cấp thoát nước bên trong công trình. Việc triển khai đúng kỹ thuật theo bản vẽ vừa đảm bảo an toàn cho quá trình vận hành, vừa giúp chủ quán dễ dàng theo dõi, bảo trì và tiết kiệm chi phí sửa chữa về lâu dài.

Bản vẽ ME giúp các kỹ sư và nhà thầu thi công nắm rõ về vị trí, đường đi của các hệ thống mạch điện và đường ống nước trong công trình
Bản vẽ ME giúp các kỹ sư và nhà thầu thi công nắm rõ về vị trí, đường đi của các hệ thống mạch điện và đường ống nước trong công trình

Những yếu tố quan trọng trong bản vẽ thiết kế quán cafe

Để dễ dàng sở hữu bản vẽ thiết kế quán cafe hoàn hảo, bạn cần chú ý đến những yếu tố quan trọng sau: 

  • Mặt bằng kinh doanh: Tận dụng tối đa điểm mạnh và khắc phục nhược điểm của hiện trạng mặt bằng. Bản vẽ cần xử lý khéo léo các góc chết hoặc hình dạng khu đất không vuông vức để tối ưu hóa diện tích sử dụng.
  • Quy mô xây dựng: Tùy vào diện tích nhỏ hay lớn mà bản vẽ cần có cách bố trí nội thất phù hợp. Quy mô lớn cần chú trọng vào sự bề thế, ngược lại quy mô nhỏ cần sự tinh tế, tích hợp nhiều chức năng trong một không gian.
  • Hệ thống ánh sáng: Cần kết hợp hài hòa giữa ánh sáng tự nhiên và ánh sáng đèn. Bản vẽ nên bố trí ánh sáng theo từng khu vực để tạo chiều sâu cho không gian và làm nổi bật các món đồ uống, nội thất trang trí.
  • Yếu tố phong thủy: Bố trí hướng cửa chính, vị trí quầy thu ngân và khu vực pha chế sao cho hợp mệnh với chủ quán. Việc sắp xếp theo phong thủy tốt giúp tạo cảm giác an tâm và hỗ trợ công việc kinh doanh thuận lợi hơn.
  • Khách hàng mục tiêu: Nghiên cứu thật kỹ về chân dung khách hàng mục tiêu trước khi tiến hành thiết kế các chi tiết của quán cà phê. Điều này sẽ giúp bạn tạo ra không gian quán hấp dẫn và thúc đẩy doanh số hiệu quả.  
Lựa chọn mặt bằng và thiết kế mặt tiền sáng tạo là yếu tố quan trọng góp phần thu hút lượng lớn khách hàng, gia tăng doanh thu
Lựa chọn mặt bằng và thiết kế mặt tiền sáng tạo là yếu tố quan trọng góp phần thu hút lượng lớn khách hàng, gia tăng doanh thu

Tổng hợp những bản vẽ thiết kế quán cafe đẹp, hợp xu hướng 2026

Nhằm giúp bạn có thêm nhiều ý tưởng cho không gian quán cafe của mình, dưới đây là tổng hợp những bản vẽ thiết kế quán cafe đẹp, đa dạng phong cách, hợp xu hướng 2026 mà bạn có thể tham khảo. 

Bản vẽ mặt bằng quán cafe nhà ống

Quán cà phê nhà ống thường dễ gây cảm giác bí và khó tổ chức không gian nếu bố trí không hợp lý. Ngoài ra, khả năng đón sáng tự nhiên và thông gió hạn chế cũng là điểm đặc trưng của loại mặt bằng này. Để tối ưu thiết kế quán cà phê nhà ống, cần ưu tiên bố trí công năng theo trục dọc, tạo lối di chuyển thông suốt từ mặt tiền vào bên trong. Bên cạnh đó, bạn cũng có thể thiết kế thêm giếng trời hoặc sử dụng cửa kính lớn để tăng cường ánh sáng và tạo điểm nhấn hiệu quả cho quán.

Bản vẽ thiết kế quán cafe nhà ống
Bản vẽ thiết kế quán cafe nhà ống
Hình ảnh thực tế được thực hiện dựa trên bản vẽ mặt bằng
Hình ảnh thực tế được thực hiện dựa trên bản vẽ mặt bằng

Bản vẽ mặt bằng quán cafe sân vườn

Bản vẽ này chú trọng vào việc kết nối hài hòa giữa không gian trong nhà và ngoài trời để tạo ra một môi trường thư giãn gần gũi với thiên nhiên. Các khu vực bàn ghế được bố trí xen kẽ quanh hệ thống cảnh quan giúp tận dụng tối đa bầu không khí thoáng đãng của sân vườn. Khu vực chức năng bao gồm quầy lễ tân và nhà vệ sinh được đặt tập trung tại một góc phía trong, đảm bảo sự tiện lợi trong vận hành mà không làm ảnh hưởng đến tầm nhìn và trải nghiệm nghỉ ngơi của khách hàng.

Bản vẽ thiết kế quán cafe sân vườn
Bản vẽ thiết kế quán cafe sân vườn
Không gian được tiến hành dựa trên bản vẽ thiết kế quán cafe đã được bàn giao trước đó
Không gian được tiến hành dựa trên bản vẽ thiết kế quán cafe đã được bàn giao trước đó

>>> Xem thêm: 35+ Mẫu thiết kế quán cafe sân vườn đẹp, độc đáo và thu hút khách 2026

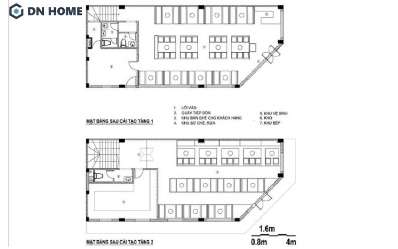
Bản vẽ mặt bằng quán cafe 2 tầng

Bản vẽ minh họa giải pháp thiết kế không gian tối ưu cho mô hình quán cafe hai tầng với đầy đủ các khu vực vận hành chuyên nghiệp. Tầng 1 tập trung vào khu vực tiếp đón, sơ chế và bếp, trong khi tầng 2 dành phần lớn diện tích cho không gian bàn ghế phục vụ khách hàng. Cách sắp xếp này giúp phân tách rõ ràng giữa khu vực kỹ thuật và khu vực thưởng thức, đảm bảo quy trình phục vụ diễn ra trơn tru đồng thời giữ được sự yên tĩnh, thoải mái cho khách.

Bản vẽ thiết kế quán cafe 2 tầng
Bản vẽ thiết kế quán cafe 2 tầng
Hình ảnh mô phỏng 3D dựa trên bản vẽ thiết kế quán cafe
Hình ảnh mô phỏng 3D dựa trên bản vẽ thiết kế quán cafe

Bản vẽ mặt bằng quán cafe nhỏ

Bản vẽ này minh họa cách tối ưu hóa công năng cho quán cafe có diện tích khiêm tốn với bố cục trải dài. Các khu vực như quầy pha chế, kho và nhà vệ sinh được đặt tại các vị trí sát tường để ưu tiên diện tích cho khu vực bàn ghế ngồi của khách. Việc kết hợp các kệ giá trang trí làm vách ngăn nhẹ giúp phân chia không gian một cách tinh tế mà không gây cảm giác chật hẹp, đảm bảo quán vẫn đầy đủ tiện nghi trong một diện tích hạn chế.

Bản vẽ thiết kế quán cafe nhỏ
Bản vẽ thiết kế quán cafe nhỏ
Hình ảnh mô phỏng không gian từ bản vẽ thiết kế quán cafe
Hình ảnh mô phỏng không gian từ bản vẽ thiết kế quán cafe

>>> Xem thêm: 75+ Mẫu thiết kế quán cafe nhỏ đẹp giá rẻ và cực kỳ hút khách 2026

Quy trình hiện thực hóa ý tưởng từ bản vẽ ra công trình tại Nội Thất Điểm Nhấn

Quy trình hiện thực hóa ý tưởng từ bản vẽ thiết kế quán cafe ra công trình tại Nội Thất Điểm Nhấn được thực hiện theo các bước bao gồm: 

  • Bước 1 – Tư vấn: Chuyên viên tư vấn tiến hành trao đổi với khách hàng về quy mô, phong cách quán cafe mong muốn. Sau đó những thông tin này sẽ được chuyển tiếp cho kiến trúc sư và lên lịch khảo sát mặt bằng.
    • Bước 2 – Khảo sát: Kiến trúc sư sẽ đến công trình để ghi nhận hiện trạng mặt bằng, đo đạc và lấy kích thước thực tế. Đây là những thông tin cơ bản đảm bảo bản vẽ thiết kế quán cafe phù hợp với không gian thực tế. 
    • Bước 3 – Lên layout, moodboard: Đội ngũ kiến trúc sư sẽ thiết kế bản vẽ kiến trúc, kết cấu, nội thất và bản vẽ kỹ thuật ME. Chúng sẽ được gửi đến khách hàng để feedback và chỉnh sửa trước khi lên bản vẽ 3D.
  • Bước 4 – Ký hợp đồng thiết kế: Sau khi khách hàng đã hài lòng và thống nhất ý tưởng, hai bên sẽ tiến hành ký hợp đồng thiết kế. Điều này giúp thống nhất các khoản về chi phí, phạm vi và tiến độ thi công. 
    • Bước 5 – Thiết kế phối cảnh 3D: Các kỹ thuật viên sẽ thực hiện render hình ảnh 3D để mô phỏng không gian một cách chân thực nhất. Tiếp đó đội ngũ sẽ gửi cho khách hàng xem xét, phản hồi và chỉnh sửa sao cho ưng ý. 
  • Bước 6 – Khái toán sơ bộ: Đội ngũ của Nội Thất Điểm Nhấn sẽ tiến hành khái toán chi phí sơ bộ giúp khách hàng có thể ước lượng ngân sách phù hợp trước khi triển khai chi tiết.
    • Bước 7 – Bản vẽ chi tiết: Ở bước này, đội ngũ kỹ thuật sẽ tiến hành hoàn tất các hồ sơ có liên quan đến bản vẽ thi công bao gồm hệ thống trần, sàn, ánh sáng,… đảm bảo tính chính xác cao.
  • Bước 8 – Khái toán chi tiết: Sau khi thống nhất hồ sơ kỹ thuật, đội ngũ sẽ gửi đến khách hàng bản báo giá chi tiết từng hạng mục và tư vấn những phương án phù hợp với ngân sách.
  • Bước 9 – Gặp gỡ tại showroom: Khách hàng được mời đến showroom để trực tiếp xem qua các loại vật liệu, màu sắc và sản phẩm nội thất thực tế trước khi tiến hành thi công. 
  • Bước 10 – Ký hợp đồng thi công: Hai bên tiến hành ký kết hợp đồng thi công. Đội ngũ của Nội Thất Điểm Nhấn cam kết triển khai theo đúng như bản vẽ và tiến độ đã bàn giao, giúp quán cafe sớm đi vào hoạt động.
Quy trình hiện thực hóa ý tưởng từ bản vẽ thiết kế ra công trình tại Nội Thất Điểm Nhấn 
Quy trình hiện thực hóa ý tưởng từ bản vẽ thiết kế ra công trình tại Nội Thất Điểm Nhấn

Những lưu ý khi tham khảo và chọn mẫu bản vẽ thiết kế quán cafe

Việc tham khảo những mẫu bản vẽ thiết kế là bước quan trọng giúp bạn có thể hình dung và định hướng phong cách cho không gian kinh doanh của mình. Tuy nhiên để không gian đảm bảo thẩm mỹ và tiện nghi, quá trình tham khảo cần lưu ý những điều sau:

Lựa chọn phù hợp với mặt bằng thực tế

Mỗi mặt bằng đều có những ưu và nhược điểm riêng về hình dáng, hướng sáng và hiện trạng kết cấu. Bạn không nên rập khuôn hoàn toàn một bản vẽ thiết kế quán cafe mẫu vào không gian của mình nếu không có sự tương đồng về kích thước. Việc chọn mẫu thiết kế cần ưu tiên sự tương thích với đặc thù mặt bằng, chẳng hạn như nhà ống cần tập trung vào chiều sâu, trong khi mặt bằng nhà lô góc cần tận dụng tối đa hai mặt tiền để thu hút khách hàng.

Nên lựa chọn mẫu bản vẽ thiết kế quán cafe phù hợp với mặt bằng thực tế
Nên lựa chọn mẫu bản vẽ thiết kế quán cafe phù hợp với mặt bằng thực tế

Thay đổi linh hoạt theo diện tích và ngân sách

Tùy vào quy mô thực tế, bạn cần chủ động điều chỉnh số lượng bàn ghế và kích thước quầy bar để tránh tình trạng không gian bị chật chội hoặc lãng phí diện tích so với bản vẽ gốc. Song song với yếu tố công năng, ngân sách đầu tư là cơ sở quan trọng để định hướng thiết kế ngay từ đầu. Thay vì áp dụng rập khuôn các mẫu thiết kế cao cấp, chủ quán nên linh hoạt lựa chọn phong cách phù hợp với khả năng tài chính, đồng thời sử dụng các loại vật liệu có chi phí hợp lý nhưng vẫn đảm bảo tính thẩm mỹ và độ bền. Điều này giúp kiểm soát ngân sách hiệu quả mà vẫn giữ được giá trị cốt lõi của bản vẽ thiết kế quán cà phê.

Thay đổi những chi tiết trong bản vẽ linh hoạt theo diện tích thực tế không gian của bạn
Thay đổi những chi tiết trong bản vẽ linh hoạt theo diện tích thực tế không gian của bạn

Hợp tác với đơn vị thiết kế uy tín để điều chỉnh kỹ thuật phù hợp

Việc bắt tay với đơn vị chuyên nghiệp là yếu tố then chốt để biến các ý tưởng tham khảo thành hồ sơ thi công chuẩn chỉnh. Thay vì tự ý chỉnh sửa, các kiến trúc sư sẽ giúp bạn chuyển đổi các hình ảnh từ bản vẽ thiết kế thành thông số kỹ thuật chính xác. Qua đó đảm bảo hệ thống điện nước và kết cấu tương thích với hiện trạng mặt bằng, giúp quán vận hành một cách an toàn. Đồng thời, đơn vị cũng sẽ hỗ trợ cá nhân hóa các chi tiết nội thất và màu sắc để không gian quán vừa đẹp vừa nhất quán với bộ nhận diện thương hiệu và tệp khách hàng mục tiêu.

Hợp tác với đơn vị thi công uy tín là yếu tố then chốt để biến các ý tưởng tham khảo thành hồ sơ thi công chuẩn chỉnh
Hợp tác với đơn vị thi công uy tín là yếu tố then chốt để biến các ý tưởng tham khảo thành hồ sơ thi công chuẩn chỉnh

Hy vọng những chia sẻ chi tiết về các loại bản vẽ cũng như quy trình hiện thực hóa ý tưởng từ Interior Highlights đã giúp bạn có cái nhìn toàn diện hơn cho kế hoạch kinh doanh của mình. Việc đầu tư nghiêm túc vào bản vẽ thiết kế quán cafe ngay từ đầu sẽ giúp tạo ra không gian trải nghiệm khác biệt, giúp quán cafe của bạn khẳng định vị thế và tạo lợi thế cạnh tranh bền vững trên thị trường. Ngoài ra, nếu bạn đang tìm kiếm giải pháp thiết kế quán cà phê phù hợp với mặt bằng, phong cách và ngân sách, đừng ngần ngại liên hệ Nội Thất Điểm Nhấn qua hotline 1800 9398 để được tư vấn chi tiết và nhận phương án thiết kế tối ưu nhất cho dự án của bạn.

 

2

Helpful article?
No reviews yet!
1800 9398 phone Contact consultant Liên hệ tư vấn chat-fb
phone 1800 9398 phone CONTACT FOR CONSULTATION

Interior design prices at Diem Nhan Interior

Note: the following costs are for reference only.

Service: Interior design services

Type of project:

Acreage: 15

Design style: 15

Interior design prices at Diem Nhan Interior

Note: the following costs are for reference only.

Service: Interior design services

Type of project:

Acreage: 15

Design style: 15